---
title: "Fjordvej m.m."
description: "Fjordvej m.m."
date: "2026-04-14"
created: "2024-10-03"
---

-
-
-

https://maps.google.dk/?q=54.7798576,11.8618079

# Fjordvej m.m.

Afdeling 3

## Velkommen til afdeling 3 Fjordvej m.m.

Afdelingen består af 144 boliger i etagebyggeri opført i 1956.
Herudover er der 12 garager til udlejning blandt afdelingens beboere.

Opskrivning til nyt cykelskurReferat af møde i afdelingsbestyrelsenRøgfri boligafdeling

## Opskrivning til nyt cykelskur

Nu kan du skrive dig op til de nye cykelskure, der er under opførsel - læs meget mere [her.](https://nfbo.dk/p/Boligdata/Filer/Afdelinger/1-3/Informationer/Orientering-om-opskrivning-af-leje-til-nyt-cykelskur.pdf "her.")

## Opskrivning til nyt cykelskur

Nu kan du skrive dig op til de nye cykelskure, der er under opførsel - læs meget mere [her.](https://nfbo.dk/p/Boligdata/Filer/Afdelinger/1-3/Informationer/Orientering-om-opskrivning-af-leje-til-nyt-cykelskur.pdf "her.")

                                Luk

## Referat af møde i afdelingsbestyrelsen

Du kan læse referatet af mødet i afdelingsbestyrelsen den 7. januar 2026 [her.](https://nfbo.dk/p/Boligdata/Filer/Afdelinger/1-3/Dagsorden og referat i afdelingsbestyrelsen mv/1-3-2026-01-07-Referat-fra-bestyrelsesmøde.pdf "her.")

## Referat af møde i afdelingsbestyrelsen

Du kan læse referatet af mødet i afdelingsbestyrelsen den 7. januar 2026 [her.](https://nfbo.dk/p/Boligdata/Filer/Afdelinger/1-3/Dagsorden og referat i afdelingsbestyrelsen mv/1-3-2026-01-07-Referat-fra-bestyrelsesmøde.pdf "her.")

                                Luk

## Røgfri boligafdeling

Afdelingsmødet har besluttet at gøre boliger, der fremadrettet bliver ledige, røgfrie. Det vil sige, at beboere, der flytter ind efter 1. januar 2023 ikke må ryge inde i boligen, men gerne på altanen eller tilsvarende uderum.

## Røgfri boligafdeling

Afdelingsmødet har besluttet at gøre boliger, der fremadrettet bliver ledige, røgfrie. Det vil sige, at beboere, der flytter ind efter 1. januar 2023 ikke må ryge inde i boligen, men gerne på altanen eller tilsvarende uderum.

                                Luk

## Faciliteter

Husdyr

Nej

Iflg. afdelingens husorden er det ikke tilladt at holde husdyr.

Hvidevarer

Ja

Der er komfur i boligerne i denne afdeling.

Selskabslokale

Ja

Der er tilknyttet selskabslokale, som afdelingens beboere kan leje ved henvendelse til boligselskabets kontor.

Vaskeri

Ja

Der er tilknyttet fællesvaskeri til benyttelse af afdelingens beboere.

## Lejemål i afdelingen

Lejligheder

2 værelser

boliger

Lejligheder

3 værelser

boliger

Lejligheder

4 værelser

boliger

Boligtype

Værelser

Størrelse

Husleje

Indskud/dp

Plantegning

Lejligheder

2

59 m²

2856 kr.

16100 kr.

![](https://nfbo.dk/i/MOLIRIMEDIA/30fcd5a3-ec92-48bd-fc2e-08dd6148a5be?width=800)

Lejligheder

2

59 m²

2848 kr.

16100 kr.

![](https://nfbo.dk/i/MOLIRIMEDIA/5f45d5f4-2bfe-42bb-f380-08dd6148a5be?width=800)

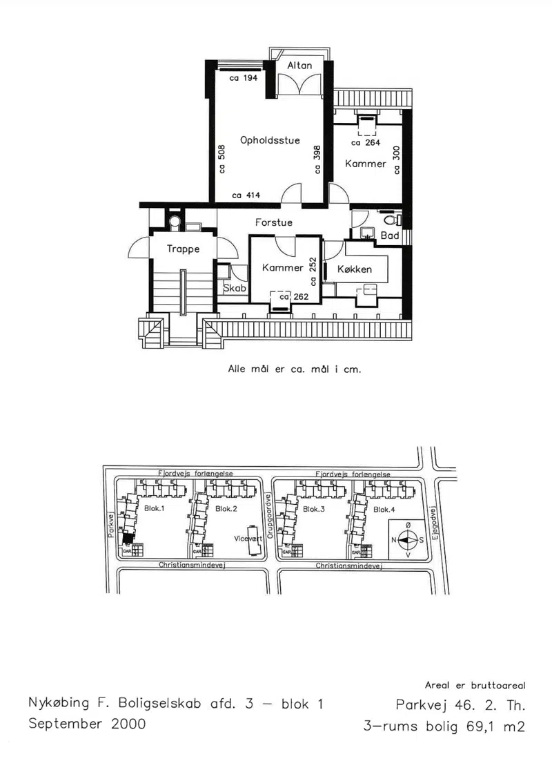
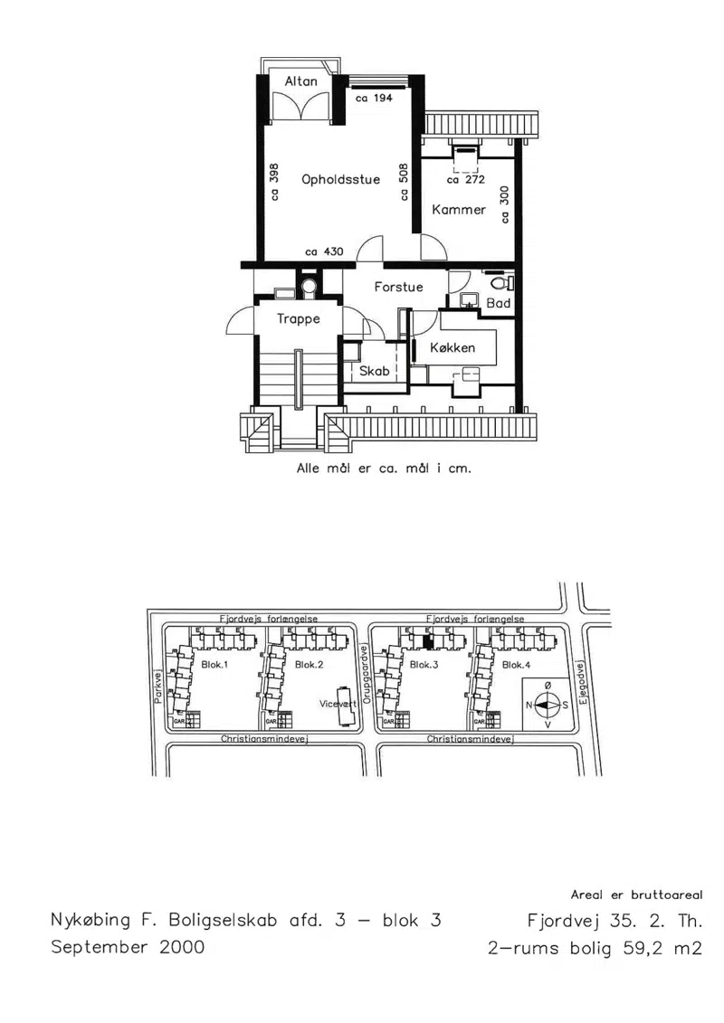
Lejligheder

2

69 m²

3278 kr.

18900 kr.

![](https://nfbo.dk/i/MOLIRIMEDIA/b2ab5a76-bbf2-4472-f951-08dd6148a5be?width=800)

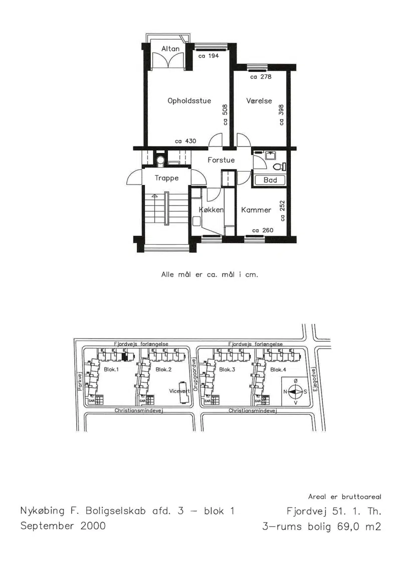
Lejligheder

3

75 m²

3373 kr.

20500 kr.

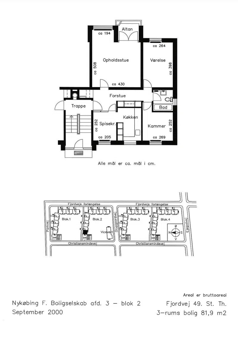
![](https://nfbo.dk/i/MOLIRIMEDIA/79a753ca-daea-4857-f945-08dd6148a5be?width=800)

Lejligheder

3

67 m²

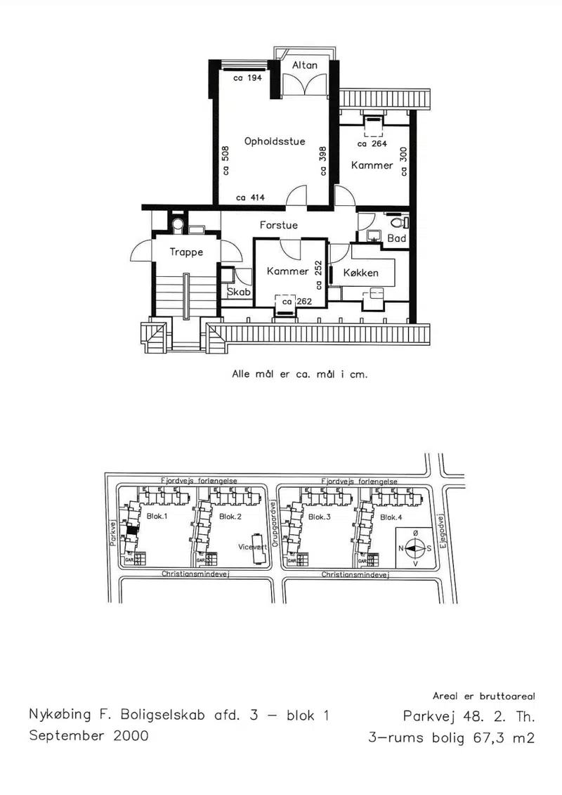
3537 kr.

18300 kr.

![](https://nfbo.dk/i/MOLIRIMEDIA/22d57526-ffb9-450e-f937-08dd6148a5be?width=800)

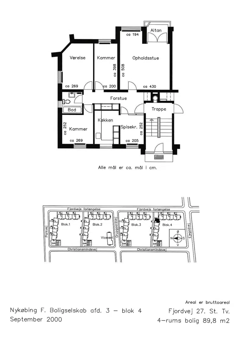
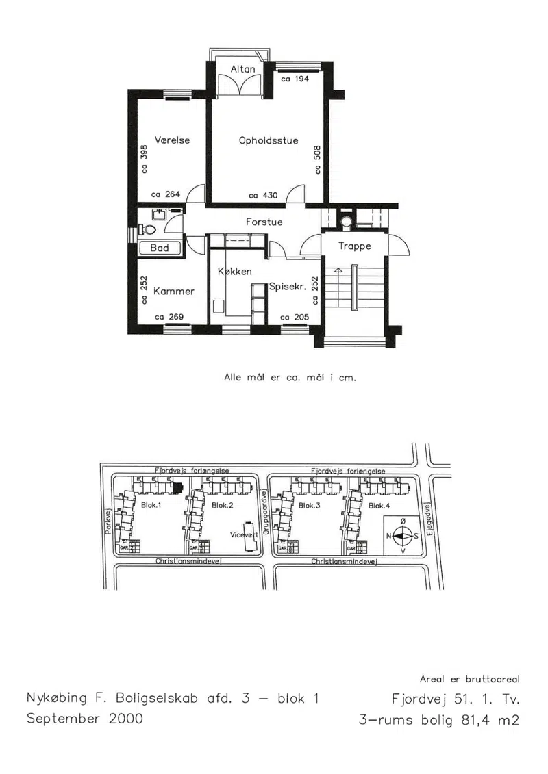
Lejligheder

3

81 m²

3643 kr.

22100 kr.

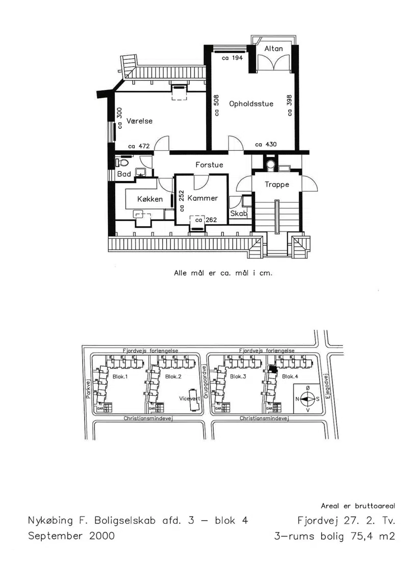
![](https://nfbo.dk/i/MOLIRIMEDIA/05be0be6-f959-4575-fc7f-08dd6148a5be?width=800)

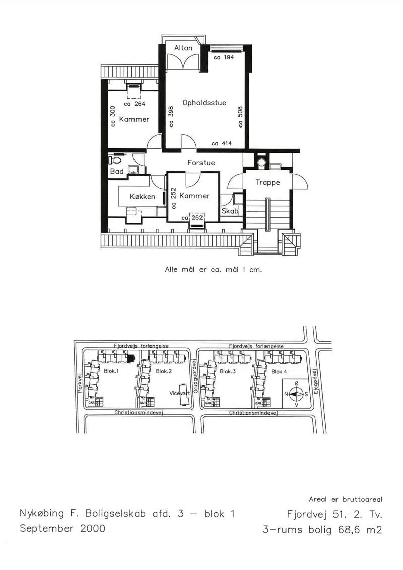
Lejligheder

3

68 m²

3218 kr.

18600 kr.

![](https://nfbo.dk/i/MOLIRIMEDIA/a6d15002-02c8-4d80-fca8-08dd6148a5be?width=800)

Lejligheder

3

79 m²

3581 kr.

21600 kr.

![](https://nfbo.dk/i/MOLIRIMEDIA/92f78fed-4bdc-43d7-f7fb-08dd6148a5be?width=800)

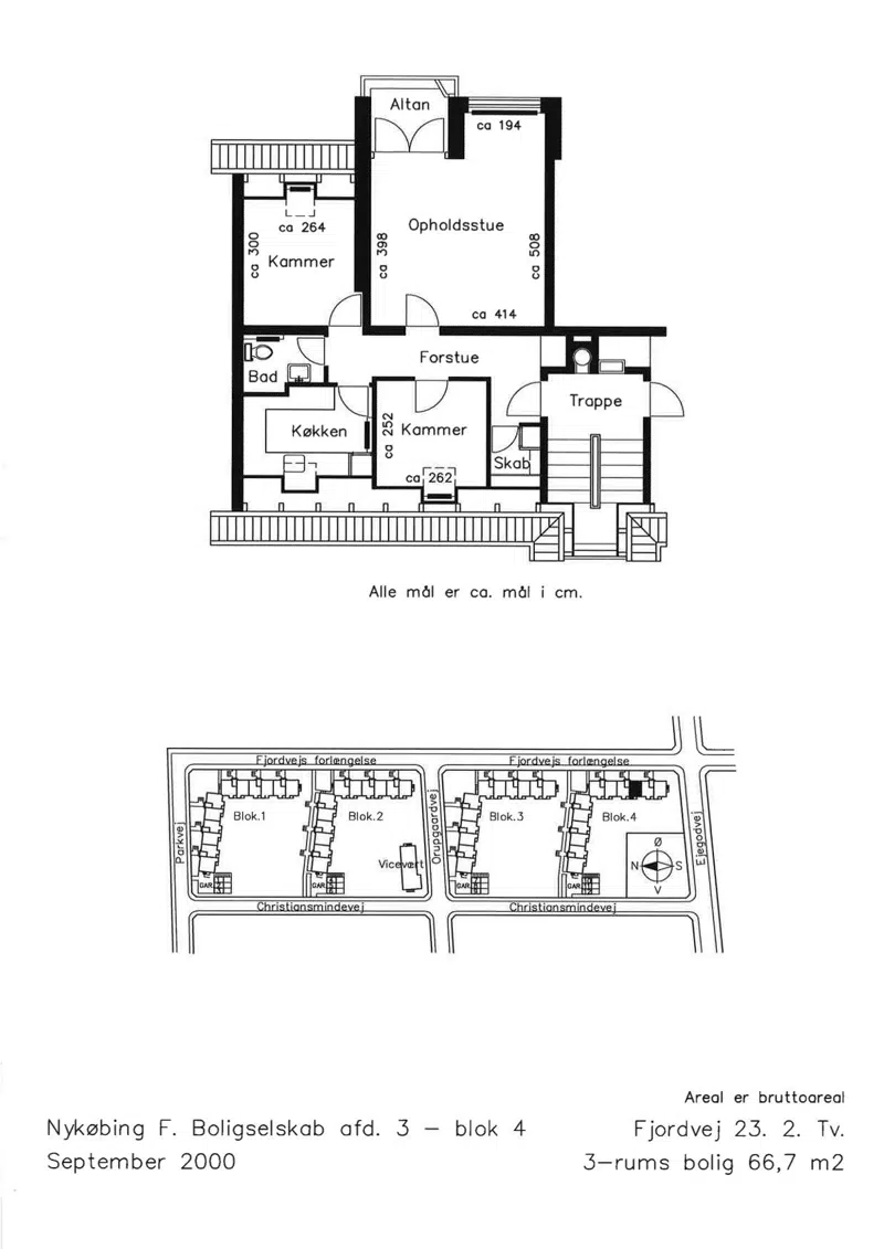
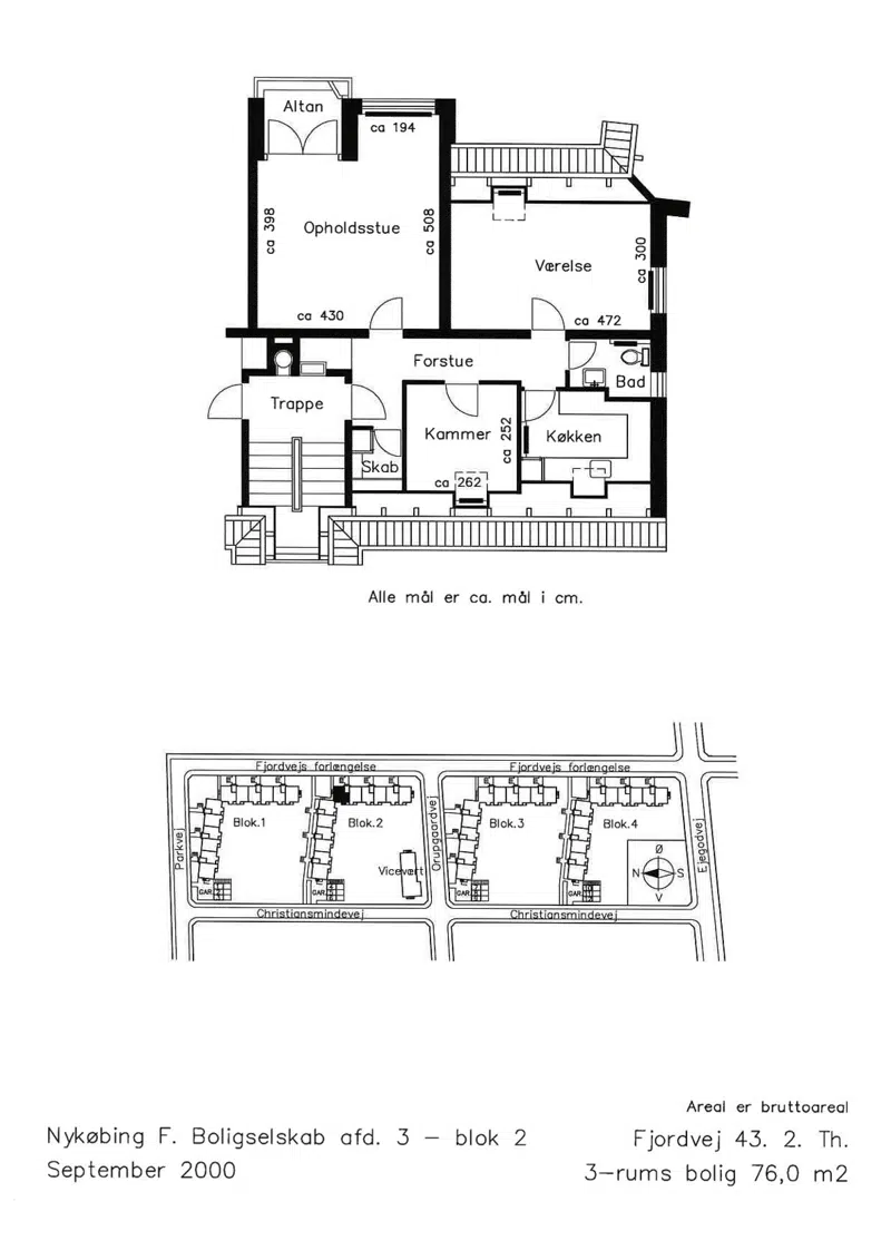
Lejligheder

3

76 m²

3503 kr.

20800 kr.

![](https://nfbo.dk/i/MOLIRIMEDIA/69014f66-9b2b-4ca2-fa70-08dd6148a5be?width=800)

Lejligheder

3

69 m²

3180 kr.

18900 kr.

![](https://nfbo.dk/i/MOLIRIMEDIA/906c1a7e-4077-420a-fbe5-08dd6148a5be?width=800)

Lejligheder

3

67 m²

3107 kr.

18300 kr.

![](https://nfbo.dk/i/MOLIRIMEDIA/02eeb470-4824-49e7-f8a1-08dd6148a5be?width=800)

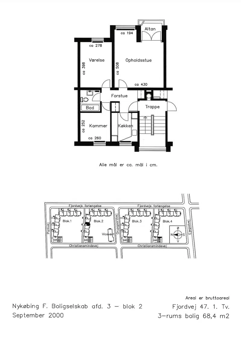
Lejligheder

3

69 m²

3180 kr.

18900 kr.

![](https://nfbo.dk/i/MOLIRIMEDIA/ebf2fbeb-d39a-47a1-f5da-08dd6148a5be?width=800)

Lejligheder

3

79 m²

3595 kr.

21600 kr.

![](https://nfbo.dk/i/MOLIRIMEDIA/b7a7390c-9313-4d67-f425-08dd6148a5be?width=800)

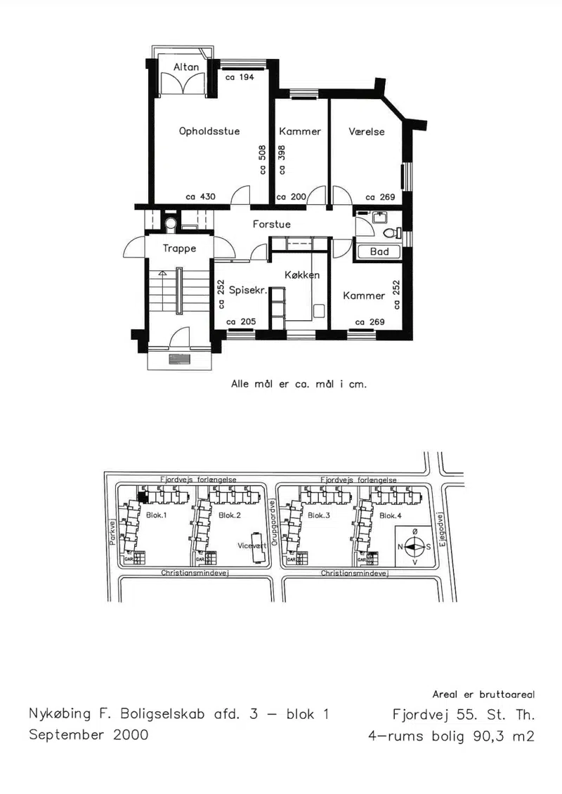
Lejligheder

4

90 m²

3885 kr.

24600 kr.

![](https://nfbo.dk/i/MOLIRIMEDIA/9f204103-2ac7-4a6b-f6f5-08dd6148a5be?width=800)

Lejligheder

4

90 m²

3907 kr.

24600 kr.

![](https://nfbo.dk/i/MOLIRIMEDIA/91e79ec0-1e38-4493-f9bc-08dd6148a5be?width=800)

## Området

Bibliotek

meter

Park/natur

meter

Træningsmuligheder

meter

Offentlig transport

meter

Indkøbsmuligheder

meter

Skole

meter

Institution

meter

Vaskeri

Har du brug for hjælp til vaskerierne?

                            [Vaskeri](https://nfbo.dk/MOLIRIPAGE/b489126a-fc7f-43a8-af5e-39b079ef50d6)

 Vagtordning

                            [Vagtordning](https://nfbo.dk/MOLIRIPAGE/716828b6-143e-4ce7-aa2e-e4104f905a1f)

## Dokumenter

Afdeling 3 dokumenter

###

                                                Arrangementer

[1-3 2026-01-22 Spiseaften - Forloren hare](https://nfbo.dk/p/Boligdata/Filer/Afdelinger/1-3/Arrangementer/januar-2026.pdf)
                                            [1-3 2025 Sommerudflugt - indbydelse til beboerne](https://nfbo.dk/p/Boligdata/Filer/Afdelinger/1-3/Arrangementer/1-3-2025-Sommerudflugt-2025-indbydelse-til-alle.pdf)
                                            [1-3 2025 Fællesspisning oktober 2025](https://nfbo.dk/p/Boligdata/Filer/Afdelinger/1-3/Arrangementer/1-3-2025-F&#xE6;llesspisning-oktober-2025.pdf)
                                            [1-3 2025-01-16 Spiseaften Koteletter i fad](https://nfbo.dk/p/Boligdata/Filer/Afdelinger/1-3/Arrangementer/1-3-2025-01-16-Spiseaften-Koteletter-i-fad.pdf)
                                            [1-3 2024-12-15 Julebanko](https://nfbo.dk/p/Boligdata/Filer/Afdelinger/1-3/Arrangementer/1-3-2024-12-15-Julebanko.pdf)
                                            [1-3 2024-11-16 Invitation til Julefrokost](https://nfbo.dk/p/Boligdata/Filer/Afdelinger/1-3/Arrangementer/1-3-2024-11-16-Invitation-til-Julefrokost.pdf)
                                            [1-3 2024-10-10 Invitation til ålegilde](https://nfbo.dk/p/Boligdata/Filer/Afdelinger/1-3/Arrangementer/1-3-2024-10-10-Invitation-til-&#xE5;legilde.pdf)
                                            [1-3 2024 Sommerudflugt - indbydelse til beboerne](https://nfbo.dk/p/Boligdata/Filer/Afdelinger/1-3/Arrangementer/1-3-2024-07-24-Sommerudflugt-2024-indbydelse-til-alle.pdf)
                                            [1-3 2024-02-17 Spiseaften Forloren hare med gemyse](https://nfbo.dk/p/Boligdata/Filer/Afdelinger/1-3/Arrangementer/1-3-2024-02-17-Spiseaften-Forloren-hare-med-gemyse.pdf)
                                            [1-3 2023-12-10 Invitation til julebanko og julehygge](https://nfbo.dk/p/Boligdata/Filer/Afdelinger/1-3/Arrangementer/1-3-2023-12-10-Invitation-til-julebanko-og-julehygge.pdf)
                                            [1-3 2023-11-16 Invitation til julefrokost](https://nfbo.dk/p/Boligdata/Filer/Afdelinger/1-3/Arrangementer/1-3-2023-11-16-Invitation-til-julefrokost.pdf)
                                            [1-3 2023-10-16 Spiseaften Gammeldags oksesteg](https://nfbo.dk/p/Boligdata/Filer/Afdelinger/1-3/Arrangementer/1-3-2023-10-16-Spiseaften-Gammeldags-oksesteg.pdf)
                                            [1-3 2023 Sommerudflugt - indbydelse til beboerne](https://nfbo.dk/p/Boligdata/Filer/Afdelinger/1-3/Arrangementer/1-3-2023-07-26-Sommerudflugt-2023-indbydelse-til-alle.pdf)
                                            [1-3 2023-03-23 Spiseaften  Høns i aspares og mørbradgryde](https://nfbo.dk/p/Boligdata/Filer/Afdelinger/1-3/Arrangementer/1-3-2023-03-23-Spiseaften--H&#xF8;ns-i-aspares-og-m&#xF8;rbradgryde.pdf)
                                            [1-3 2023-02-14 Invitation til banko](https://nfbo.dk/p/Boligdata/Filer/Afdelinger/1-3/Arrangementer/1-3-2023-02-14-Invitation-til-banko.pdf)
                                            [1-3 2023-01-28 Spiseaften Stegt ål](https://nfbo.dk/p/Boligdata/Filer/Afdelinger/1-3/Arrangementer/1-3-2023-01-28-Spiseaften-Stegt-&#xE5;l.pdf)
                                            [1-3 2022-12-11 Invitation til julebanko og julehygge](https://nfbo.dk/p/Boligdata/Filer/Afdelinger/1-3/Arrangementer/1-3-2022-12-11-Invitation-til-julebanko-og-julehygge.pdf)
                                            [1-3 2022-11-14 Spiseaften Gammeldags kylling](https://nfbo.dk/p/Boligdata/Filer/Afdelinger/1-3/Arrangementer/1-3-2022-11-14-Spiseaften-Gammeldags-kylling.pdf)
                                            [1-3 2022-08-17 Krolf opslag](https://nfbo.dk/p/Boligdata/Filer/Afdelinger/1-3/Arrangementer/1-3-2022-08-17-Krolf-opslag.pdf)
                                            [1-3 2022 Sommerudflugt - Indbydelse til beboerne](https://nfbo.dk/p/Boligdata/Filer/Afdelinger/1-3/Arrangementer/1-3-2022-05-28-Sommerudflugt-2022--Indbydelse--til-Fransk-For&#xE5;r.pdf)
                                            [1-3 2021-12-05 Julebanko og julehygge](https://nfbo.dk/p/Boligdata/Filer/Afdelinger/1-3/Arrangementer/1-3-2021-12-05-Julebanko-og-julehygge.pdf)
                                            [1-3 2021-11-18 Invitation til ålegilde](https://nfbo.dk/p/Boligdata/Filer/Afdelinger/1-3/Arrangementer/1-3-2021-11-18-Invitation-til-&#xE5;legilde.pdf)
                                            [1-3 2021 Tur til Langeland - indbydelse til beboerne](https://nfbo.dk/p/Boligdata/Filer/Afdelinger/1-3/Arrangementer/1-3-2021-08-08-Tur-til-Langeland-2021.pdf)

###

                                                Dagsorden og referat i afdelingsbestyrelsen mv

[1-3 2026-01-07 Referat af bestyrelsesmøde](https://nfbo.dk/p/Boligdata/Filer/Afdelinger/1-3/Dagsorden%20og%20referat%20i%20afdelingsbestyrelsen%20mv/1-3-2026-01-07-Referat-fra-bestyrelsesm&#xF8;de.pdf)
                                            [1-3 2025-10-02 Referat af bestyrelsesmøde](https://nfbo.dk/p/Boligdata/Filer/Afdelinger/1-3/Dagsorden%20og%20referat%20i%20afdelingsbestyrelsen%20mv/1-3-2025-10-02-Referat-af-bestyrelsesm&#xF8;de.pdf)
                                            [1-3 2025-06-12 Referat af bestyrelsesmøde](https://nfbo.dk/p/Boligdata/Filer/Afdelinger/1-3/Dagsorden%20og%20referat%20i%20afdelingsbestyrelsen%20mv/1-3-2025-06-12-Referat-fra-bestyrelsesm&#xF8;de.pdf)
                                            [1-3 2025-01-25 Referat af bestyrelsesmøde](https://nfbo.dk/p/Boligdata/Filer/Afdelinger/1-3/Dagsorden%20og%20referat%20i%20afdelingsbestyrelsen%20mv/1-3-2025-01-25-Referat-af-bestyrelsesm&#xF8;de.pdf)
                                            [1-3 2024-11-14 Referat af bestyrelsesmøde](https://nfbo.dk/p/Boligdata/Filer/Afdelinger/1-3/Dagsorden%20og%20referat%20i%20afdelingsbestyrelsen%20mv/1-3-2024-11-14-Referat-af-bestyrelsesm&#xF8;de.pdf)
                                            [1-3 2023-08-17 Referat af bestyrelsesmøde](https://nfbo.dk/p/Boligdata/Filer/Afdelinger/1-3/Dagsorden%20og%20referat%20i%20afdelingsbestyrelsen%20mv/1-3-2023-08-17-Referat-af-bestyrelsesm&#xF8;de.pdf)
                                            [1-3 2023-02-21 Referat af bestyrelsesmøde](https://nfbo.dk/p/Boligdata/Filer/Afdelinger/1-3/Dagsorden%20og%20referat%20i%20afdelingsbestyrelsen%20mv/1-3-2023-02-21-Referat-af-bestyrelsesm&#xF8;de.pdf)
                                            [1-3 2022-10-25 Referat af bestyrelsesmøde](https://nfbo.dk/p/Boligdata/Filer/Afdelinger/1-3/Dagsorden%20og%20referat%20i%20afdelingsbestyrelsen%20mv/1-3-2022-10-25-Referat-af-bestyrelsesm&#xF8;de.pdf)
                                            [1-3 2022-08-09 Referat af bestyrelsesmøde](https://nfbo.dk/p/Boligdata/Filer/Afdelinger/1-3/Dagsorden%20og%20referat%20i%20afdelingsbestyrelsen%20mv/1-3-2022-08-09-Referat-af-bestyrelsesm&#xF8;de.pdf)
                                            [1-3 2022-03-22 Referat af bestyrelsesmøde](https://nfbo.dk/p/Boligdata/Filer/Afdelinger/1-3/Dagsorden%20og%20referat%20i%20afdelingsbestyrelsen%20mv/1-3-2022-03-22-Referat-af-bestyrelsesm&#xF8;de.pdf)
                                            [1-3 2021-10-20 Referat af bestyrelsesmøde](https://nfbo.dk/p/Boligdata/Filer/Afdelinger/1-3/Dagsorden%20og%20referat%20i%20afdelingsbestyrelsen%20mv/1-3-2021-10-20-Referat-af-bestyrelsesm&#xF8;de.pdf)
                                            [1-3 2021-08-30 Referat af bestyrelsesmøde](https://nfbo.dk/p/Boligdata/Filer/Afdelinger/1-3/Dagsorden%20og%20referat%20i%20afdelingsbestyrelsen%20mv/1-3-2021-08-30-Referat-af-bestyrelsesm&#xF8;de.pdf)

###

                                                Energimærkning

[1-3 Energimærke - Fjordvej 51-55 & Parkvej 46-50](https://nfbo.dk/p/Boligdata/Filer/Afdelinger/1-3/Energim&#xE6;rkning/1-3-Energim&#xE6;rke---Fjordvej-51-55---Parkvej-46-50.pdf)
                                            [1-3 Energimærke - Fjordvej 39-49](https://nfbo.dk/p/Boligdata/Filer/Afdelinger/1-3/Energim&#xE6;rkning/1-3-Energim&#xE6;rke---Fjordvej-39-49.pdf)
                                            [1-3 Energimærke - Fjordvej 33-37 & Orupgaardvej 32-36](https://nfbo.dk/p/Boligdata/Filer/Afdelinger/1-3/Energim&#xE6;rkning/1-3-Energim&#xE6;rke---Fjordvej-33-37---Orupgaardvej-32-36.pdf)
                                            [1-3 Energimærke - Fjordvej 21-31](https://nfbo.dk/p/Boligdata/Filer/Afdelinger/1-3/Energim&#xE6;rkning/1-3-Energim&#xE6;rke---Fjordvej-21-31.pdf)

###

                                                Informationer

[1-3 2026-04-09 Orientering om nyt cykleskur](https://nfbo.dk/p/Boligdata/Filer/Afdelinger/1-3/Informationer/Orientering-om-opskrivning-af-leje-til-nyt-cykelskur.pdf)
                                            [1-3 2024-07-25 Ny indsamlingsordning af affald Parkvej 46-50 og Fjordvej 39-55](https://nfbo.dk/p/Boligdata/Filer/Afdelinger/1-3/Informationer/1-3-2024-07-25-Ny-indsamlingsordning-af-affald-Parkvej-46-50-og-Fjordvej-39-55.pdf)
                                            [1-3 2024-07-18 Ny indsamlingsordning af affald - Fjordvej 21-35](https://nfbo.dk/p/Boligdata/Filer/Afdelinger/1-3/Informationer/1-3-2024-07-18-Ny-indsamlingsordning-af-affald---Fjordvej-21-35.pdf)
                                            [1-3 2023-04-01 Flytning til sikringsrummene](https://nfbo.dk/p/Boligdata/Filer/Afdelinger/1-3/Informationer/1-3-2023-04-01-Flytning-til-sikringsrummene.pdf)
                                            [1-3 2023-03-01 Opbevaring i sikringsrummene](https://nfbo.dk/p/Boligdata/Filer/Afdelinger/1-3/Informationer/1-3-2023-03-01-Opbevaring-i-sikringsrummene.pdf)
                                            [1-3 2021-05-01 Byggenyt - naboer](https://nfbo.dk/p/Boligdata/Filer/Afdelinger/1-3/Informationer/1-3-2021-05-01-Byggenyt---naboer.pdf)

###

                                                Regler i afdelingen

[1-3 2025-2026 Forretningsorden afdelingsbestyrelsen](https://nfbo.dk/p/Boligdata/Filer/Afdelinger/1-3/Regler%20i%20afdelingen/Forretningsorden-for-afdelingsbestyrelsen-afd-3-2025-2026---underskrevet.pdf)
                                            [1-3 2024 Forretningsorden afdelingsmødet](https://nfbo.dk/p/Boligdata/Filer/Afdelinger/1-3/Regler%20i%20afdelingen/Forretningsorden-afdelingsmodet-afd-3-gaeldende-04-09-2024.pdf)
                                            [1-3 2025 Vedligeholdelsesregler](https://nfbo.dk/p/Boligdata/Filer/Afdelinger/1-3/Regler%20i%20afdelingen/1-3-Vedligeholdelsesregler.pdf)
                                            [1-3 2022 Lokale regler](https://nfbo.dk/p/Boligdata/Filer/Afdelinger/1-3/Regler%20i%20afdelingen/1-3-Lokale-regler-2022.pdf)
                                            [1-3 2025 Husordensregler](https://nfbo.dk/p/Boligdata/Filer/Afdelinger/1-3/Regler%20i%20afdelingen/1-3-Husordensregler-2023-ver-2.pdf)
                                            [1-3 2025 Forretningsorden for afdelingsmødet](https://nfbo.dk/p/Boligdata/Filer/Afdelinger/1-3/Regler%20i%20afdelingen/1-3-Forretningsorden-for-afdelingsm&#xF8;det-2024.pdf)

###

                                                Selskabslokale

[1-5 Selskabslokale Grønttorvet](https://nfbo.dk/p/Boligdata/Filer/Afdelinger/1-3/Selskabslokale/1-5-Selskabslokale-Gr&#xF8;nttorvet%281%29.pdf)
                                            [1-3 Selskabslokale Fjordvej 43](https://nfbo.dk/p/Boligdata/Filer/Afdelinger/1-3/Selskabslokale/1-3-Selskabslokale-Fjordvej-43%281%29.pdf)
                                            [1-17 Selskabslokale Frisegade 33](https://nfbo.dk/p/Boligdata/Filer/Afdelinger/1-3/Selskabslokale/1-17-Selskabslokale-Frisegade-33%281%29.pdf)
                                            [1-13 Selskabslokale Holger Brodthagensvej 163](https://nfbo.dk/p/Boligdata/Filer/Afdelinger/1-3/Selskabslokale/1-13-Selskabslokale-Holger-Brodthagensvej-163%281%29.pdf)

## Afdelingsmøder

###

                                                2025

[1-3 2025 Regnskab for rådighedsbeløb 2024](https://nfbo.dk/p/Boligdata/Filer/Afdelinger/1-3/Afdelingsm&#xF8;der/2025/Regnskab-for-r&#xE5;dighedsbel&#xF8;b-2024-afdeling-3.pdf)
                                            [1-3 2025 Langtidsplan](https://nfbo.dk/p/Boligdata/Filer/Afdelinger/1-3/Afdelingsm&#xF8;der/2025/Langtidsplan-2025-afdeling-3.pdf)
                                            [1-3 2025 Forslag indskrevet](https://nfbo.dk/p/Boligdata/Filer/Afdelinger/1-3/Afdelingsm&#xF8;der/2025/Forslag-skrevet-ind-afdeling-3-2025.pdf)
                                            [1-3 2025 Dagsorden ordinært afdelingsmøde](https://nfbo.dk/p/Boligdata/Filer/Afdelinger/1-3/Afdelingsm&#xF8;der/2025/Dagsorden-ordin&#xE6;rt-m&#xF8;de-2025-afdeling-3.pdf)
                                            [1-3 2025 Budget 2026](https://nfbo.dk/p/Boligdata/Filer/Afdelinger/1-3/Afdelingsm&#xF8;der/2025/Budget-2026-afdeling-3.pdf)
                                            [1-3 2025 Referat ord. afdelingsmøde inkl. orientering om store træer](https://nfbo.dk/p/Boligdata/Filer/Afdelinger/1-3/Afdelingsm&#xF8;der/2025/01-03-referat-ordin&#xE6;rt-afdelingsm&#xF8;de-2025-inkl.-orientering-om-store-tr&#xE6;er.pdf)

###

                                                2024

[1-3 2024 Regnskab for rådighedsbeløb 2023](https://nfbo.dk/p/Boligdata/Filer/Afdelinger/1-3/Afdelingsm&#xF8;der/2024/1-3-2024-Regnskab-for-r&#xE5;dighedsbel&#xF8;b-2023.pdf)
                                            [1-3 2024 Referat ordinært afdelingsmøde](https://nfbo.dk/p/Boligdata/Filer/Afdelinger/1-3/Afdelingsm&#xF8;der/2024/1-3-2024-Referat-ordin&#xE6;rt-afdelingsm&#xF8;de.pdf)
                                            [1-3 2024 Langtidsplan](https://nfbo.dk/p/Boligdata/Filer/Afdelinger/1-3/Afdelingsm&#xF8;der/2024/1-3-2024-Langtidsplan-d-1.1.2025.pdf)
                                            [1-3 2024 Forslag indskrevet](https://nfbo.dk/p/Boligdata/Filer/Afdelinger/1-3/Afdelingsm&#xF8;der/2024/1-3-2024-Forslag-indskrevet.pdf)
                                            [1-3 2024 Dagsorden ordinært afdelingsmøde](https://nfbo.dk/p/Boligdata/Filer/Afdelinger/1-3/Afdelingsm&#xF8;der/2024/1-3-2024-Dagsorden-ordin&#xE6;rt-afdelingsm&#xF8;de.pdf)
                                            [1-3 2024 Budget 2025](https://nfbo.dk/p/Boligdata/Filer/Afdelinger/1-3/Afdelingsm&#xF8;der/2024/1-3-2024-Budget-2025.pdf)

###

                                                2023

[1-3 2023 Regnskab for rådighedsbeløb 2022](https://nfbo.dk/p/Boligdata/Filer/Afdelinger/1-3/Afdelingsm&#xF8;der/2023/1-3-2023-Regnskab-for-r&#xE5;dighedsbel&#xF8;b-2022.pdf)
                                            [1-3 2023 Referat ordinært afdelingsmøde](https://nfbo.dk/p/Boligdata/Filer/Afdelinger/1-3/Afdelingsm&#xF8;der/2023/1-3-2023-Referat-ordin&#xE6;rt-afdelingsm&#xF8;de.pdf)
                                            [1-3 2023 Forslag indskevet](https://nfbo.dk/p/Boligdata/Filer/Afdelinger/1-3/Afdelingsm&#xF8;der/2023/1-3-2023-Forslag-indskevet.pdf)
                                            [1-3 2023 Dagsorden ordinært afdelingsmøde](https://nfbo.dk/p/Boligdata/Filer/Afdelinger/1-3/Afdelingsm&#xF8;der/2023/1-3-2023-Dagsorden-ordin&#xE6;rt-afdelingsm&#xF8;de.pdf)
                                            [1-3 2023 Budget 2024](https://nfbo.dk/p/Boligdata/Filer/Afdelinger/1-3/Afdelingsm&#xF8;der/2023/1-3-2023-Budget-2024.pdf)

###

                                                2022

[1-3 2022 Regnskab for rådighedsbeløb 2021](https://nfbo.dk/p/Boligdata/Filer/Afdelinger/1-3/Afdelingsm&#xF8;der/2022/1-3-2022-Regnskab-for-r&#xE5;dighedsbel&#xF8;b-2021.pdf)
                                            [1-3 2022 Referat ordinært afdelingsmøde](https://nfbo.dk/p/Boligdata/Filer/Afdelinger/1-3/Afdelingsm&#xF8;der/2022/1-3-2022-Referat-ordin&#xE6;rt-afdelingsm&#xF8;de.pdf)
                                            [1-3 2022 Forslag indskrevet](https://nfbo.dk/p/Boligdata/Filer/Afdelinger/1-3/Afdelingsm&#xF8;der/2022/1-3-2022-Forslag-indskrevet.pdf)
                                            [1-3 2022 Dagsorden ordinært afdelingsmøde 2022](https://nfbo.dk/p/Boligdata/Filer/Afdelinger/1-3/Afdelingsm&#xF8;der/2022/1-3-2022-Dagsorden-ordin&#xE6;rt-afdelingsm&#xF8;de-2022-afd-3.pdf)
                                            [1-3 2022 Budget 2023](https://nfbo.dk/p/Boligdata/Filer/Afdelinger/1-3/Afdelingsm&#xF8;der/2022/1-3-2022-Budget-2023.pdf)

###

                                                2021

[1-3 2021 Regnskab for rådighedsbeløb 2020](https://nfbo.dk/p/Boligdata/Filer/Afdelinger/1-3/Afdelingsm&#xF8;der/2021/1-3-2021-Regnskab-for-r&#xE5;dighedsbel&#xF8;b-2020.pdf)
                                            [1-3 2021 Referat ordinært afdelingsmøde](https://nfbo.dk/p/Boligdata/Filer/Afdelinger/1-3/Afdelingsm&#xF8;der/2021/1-3-2021-Referat-ordin&#xE6;rt-afdelingsm&#xF8;de.pdf)
                                            [1-3 2021 Forslag indskrevet](https://nfbo.dk/p/Boligdata/Filer/Afdelinger/1-3/Afdelingsm&#xF8;der/2021/1-3-2021-Forslag-indskrevet.pdf)
                                            [1-3 2021 Dagsorden ordinært afdelingsmøde](https://nfbo.dk/p/Boligdata/Filer/Afdelinger/1-3/Afdelingsm&#xF8;der/2021/1-3-2021-Dagsorden-ordin&#xE6;rt-afdelingsm&#xF8;de.pdf)
                                            [1-3 2021 Budget 2022](https://nfbo.dk/p/Boligdata/Filer/Afdelinger/1-3/Afdelingsm&#xF8;der/2021/1-3-2021-Budget-2022.pdf)

## Afdelingsbestyrelsesmedlemmer

Navn

Titel

Email

Telefon

Bent Juel Christensen

Formand

bgjuel@gmail.com

30317348

Lars Lindkilde

Medlem

lindkilde.lars@gmail.com

31323866

Mogens Christian Hansen

Medlem

annette.mogens4800@gmail.com

30636311

Gitte Mie Hansen

Suppleant

gittemiehansen@gmail.com

20472334

Ingrid K. Nielsen

Suppleant

ikni@mail.dk

22924349
