---
title: "Kirkegårdsvej"
description: "Kirkegårdsvej"
date: "2026-02-09"
created: "2024-10-03"
---

-
-
-

https://maps.google.dk/?q=54.7587582,11.8762563

# Kirkegårdsvej

Afdeling 21

## Velkommen til afdeling 21 Kirkegårdsvej

Afdelingen består af 16 boliger i enten stueetage eller 1. sal. Afdelingen er opført i 1990.
Herudover er der 4 carporte til udlejning blandt afdelingens beboere.

## Vigtige meddelelser for beboere

Røgfri boligafdelingHusdyr

## Røgfri boligafdeling

Afdelingsmødet har besluttet at gøre boliger, der fremadrettet bliver ledige, røgfrie. Det vil sige, at beboere, der flytter ind efter 1. januar 2023 ikke må ryge inde i boligen, men gerne på altanen eller tilsvarende uderum.

## Røgfri boligafdeling

Afdelingsmødet har besluttet at gøre boliger, der fremadrettet bliver ledige, røgfrie. Det vil sige, at beboere, der flytter ind efter 1. januar 2023 ikke må ryge inde i boligen, men gerne på altanen eller tilsvarende uderum.

                                Luk

## Husdyr

Det er tilladt at holde husdyr i afdelingen - [læs mere her](https://nfbo.dk/p/Boligdata/Afdelinger/1-21/Nyheder/Husordensregler-afdeling-21-2023.pdf "læs mere her") - i afsnittet "Hensyn: Husdyr".

## Husdyr

Det er tilladt at holde husdyr i afdelingen - [læs mere her](https://nfbo.dk/p/Boligdata/Afdelinger/1-21/Nyheder/Husordensregler-afdeling-21-2023.pdf "læs mere her") - i afsnittet "Hensyn: Husdyr".

                                Luk

## Faciliteter

Husdyr

Ja

Det er tilladt at holde husdyr i afdelingen, jf. afdelingens husorden.

Hvidevarer

Ja

Ud over komfur er der i lejlighederne også installeret køleskab.

Selskabslokale

Nej

Vaskeri

Nej

## Lejemål i afdelingen

Lejligheder

2 værelser

boliger

Lejligheder

3 værelser

boliger

Boligtype

Værelser

Størrelse

Husleje

Indskud/dp

Plantegning

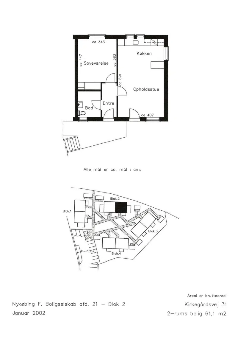
Lejligheder

2

61 m²

4370 kr.

16700 kr.

![](https://nfbo.dk/i/MOLIRIMEDIA/7e39baae-48ea-4785-f927-08dd6148a5be?width=800)

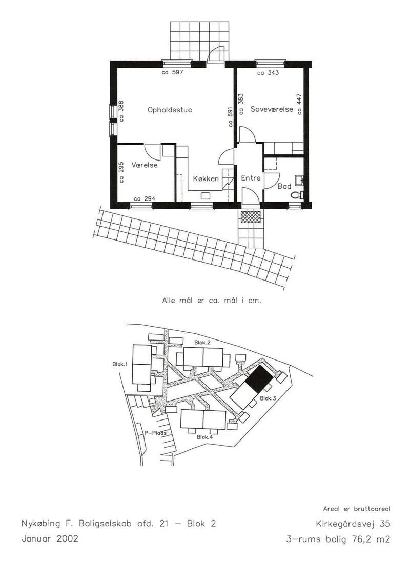
Lejligheder

3

76 m²

5141 kr.

20800 kr.

![](https://nfbo.dk/i/MOLIRIMEDIA/40356bc0-e0a7-4c52-f85a-08dd6148a5be?width=800)

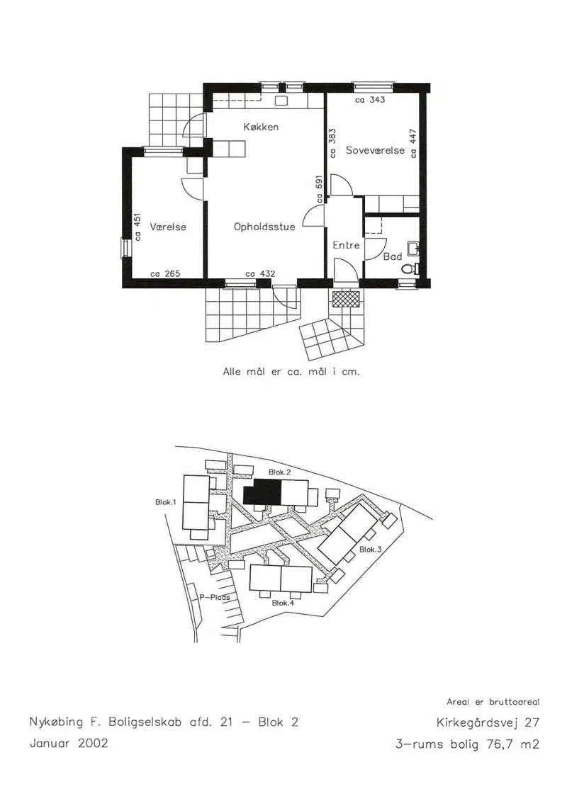
Lejligheder

3

76 m²

5167 kr.

20800 kr.

![](https://nfbo.dk/i/MOLIRIMEDIA/61a7df45-12b5-4c3f-f78c-08dd6148a5be?width=800)

## Området

Bibliotek

meter

Park/natur

meter

Træningsmuligheder

meter

Offentlig transport

meter

Indkøbsmuligheder

meter

Skole

meter

Institution

meter

Vagtordning

                            [Vagtordning](https://nfbo.dk/MOLIRIPAGE/716828b6-143e-4ce7-aa2e-e4104f905a1f)

## Dokumenter

Afdeling 21 dokumenter

###

                                                Arrangementer

[1-21 2025 Sommerudflugt - invitation til beboerne](https://nfbo.dk/p/Boligdata/Filer/Afdelinger/1-21/Arrangementer/1-21-2025-Sommerudflugt-2025-indbydelse-til-alle.pdf)
                                            [1-21 2024 Sommerudflugt - invitation til beboerne](https://nfbo.dk/p/Boligdata/Filer/Afdelinger/1-21/Arrangementer/1-21-2024-07-24-Sommerudflugt-2024-indbydelse-til-alle.pdf)
                                            [1-21 2023 Sommerudflugt - invitation til beboerne](https://nfbo.dk/p/Boligdata/Filer/Afdelinger/1-21/Arrangementer/1-21-2023-07-26-Sommerudflugt-2023-indbydelse-til-alle.pdf)
                                            [1-21 2022 Sommerudflugt - invitation til beboerne](https://nfbo.dk/p/Boligdata/Filer/Afdelinger/1-21/Arrangementer/1-21-2022-05-28-Indbydelse--til-Fransk-For&#xE5;r.pdf)
                                            [1-21 2021 Sommerudflugt - invitation til beboerne](https://nfbo.dk/p/Boligdata/Filer/Afdelinger/1-21/Arrangementer/1-21-2021-08-08-Tur-til-Langeland.pdf)

###

                                                Energimærkning

[1-21 Energimærke - Kirkegaardsvej 43-49](https://nfbo.dk/p/Boligdata/Filer/Afdelinger/1-21/Energim&#xE6;rkning/1-21-Energim&#xE6;rke---Kirkegaardsvej-43-49.pdf)
                                            [1-21 Energimærke - Kirkegaardsvej 35-41](https://nfbo.dk/p/Boligdata/Filer/Afdelinger/1-21/Energim&#xE6;rkning/1-21-Energim&#xE6;rke---Kirkegaardsvej-35-41.pdf)
                                            [1-21 Energimærke - Kirkegaardsvej 27-33](https://nfbo.dk/p/Boligdata/Filer/Afdelinger/1-21/Energim&#xE6;rkning/1-21-Energim&#xE6;rke---Kirkegaardsvej-27-33.pdf)
                                            [1-21 Energimærke - Kirkegaardsvej 19-25](https://nfbo.dk/p/Boligdata/Filer/Afdelinger/1-21/Energim&#xE6;rkning/1-21-Energim&#xE6;rke---Kirkegaardsvej-19-25.pdf)

###

                                                Informationer

[1-21 2024-08-14 Ny indsamlingsordning af affald - Kirkegaardsvej](https://nfbo.dk/p/Boligdata/Filer/Afdelinger/1-21/Informationer/1-21-2024-08-14-Ny-indsamlingsordning-af-affald---Kirkegaardsvej.pdf)

###

                                                Regler i afdelingen

[1-21 2016 Vedligeholdelsesregler](https://nfbo.dk/p/Boligdata/Filer/Afdelinger/1-21/Regler%20i%20afdelingen/1-21-Vedligeholdelsesregler.pdf)
                                            [1-21 2023 Lokale regler 2023](https://nfbo.dk/p/Boligdata/Filer/Afdelinger/1-21/Regler%20i%20afdelingen/1-21-Lokale-regler-2023.pdf)
                                            [1-21 2023 Husordensregler](https://nfbo.dk/p/Boligdata/Filer/Afdelinger/1-21/Regler%20i%20afdelingen/1-21-Husordensregler-2023-ver-2.pdf)
                                            [1-21 2024 Forretningsorden for afdelingsmødet](https://nfbo.dk/p/Boligdata/Filer/Afdelinger/1-21/Regler%20i%20afdelingen/1-21-Forretningsorden-afdelingsm&#xF8;det-2024.pdf)

###

                                                Selskabslokale

[1-5 Selskabslokale Grønttorvet](https://nfbo.dk/p/Boligdata/Filer/Afdelinger/1-21/Selskabslokale/1-5-Selskabslokale-Gr&#xF8;nttorvet%281%29.pdf)
                                            [1-3 Selskabslokale Fjordvej 43](https://nfbo.dk/p/Boligdata/Filer/Afdelinger/1-21/Selskabslokale/1-3-Selskabslokale-Fjordvej-43%281%29.pdf)
                                            [1-17 Selskabslokale Frisegade 33](https://nfbo.dk/p/Boligdata/Filer/Afdelinger/1-21/Selskabslokale/1-17-Selskabslokale-Frisegade-33%281%29.pdf)
                                            [1-13 Selskabslokale Holger Brodthagensvej 163](https://nfbo.dk/p/Boligdata/Filer/Afdelinger/1-21/Selskabslokale/1-13-Selskabslokale-Holger-Brodthagensvej-163%281%29.pdf)

###

                                                Vedligeholdelse

[1-21 Vedligeholdelse af varmepumpe](https://nfbo.dk/p/Boligdata/Filer/Afdelinger/1-21/Vedligeholdelse/1-21-Vedligeholdelse-af-varmepumpe.pdf)

## Afdelingsmøder

###

                                                2025

[1-21 2025 Regnskab for rådighedsbeløb 2024](https://nfbo.dk/p/Boligdata/Filer/Afdelinger/1-21/Afdelingsm&#xF8;der/2025/Regnskab-for-r&#xE5;dighedsbel&#xF8;b-2024---afdeling-21.pdf)
                                            [1-21 2025 Langtidsplan](https://nfbo.dk/p/Boligdata/Filer/Afdelinger/1-21/Afdelingsm&#xF8;der/2025/Langtidsplan-2026-og-frem---afdeling-21.pdf)
                                            [1-21 2025 Forslag indskrevet](https://nfbo.dk/p/Boligdata/Filer/Afdelinger/1-21/Afdelingsm&#xF8;der/2025/Forslag-indskrevet-afdeling-21.pdf)
                                            [1-21 2025 Bilag til forslag 2](https://nfbo.dk/p/Boligdata/Filer/Afdelinger/1-21/Afdelingsm&#xF8;der/2025/Forretningsorden-afdelingsm&#xF8;det-afd-4---21-og-54--g&#xE6;ldende-2025.pdf)
                                            [1-21 2025 Dagsorden ordinært afdelingsmøde](https://nfbo.dk/p/Boligdata/Filer/Afdelinger/1-21/Afdelingsm&#xF8;der/2025/Dagsorden-ordin&#xE6;rt-m&#xF8;de-2025-afdeling-21.pdf)
                                            [1-21 2025 Budget 2026](https://nfbo.dk/p/Boligdata/Filer/Afdelinger/1-21/Afdelingsm&#xF8;der/2025/Budget-2026---afdeling-21.pdf)
                                            [1-21 2025 Referat af ordinært afdelingsmøde](https://nfbo.dk/p/Boligdata/Filer/Afdelinger/1-21/Afdelingsm&#xF8;der/2025/01-21-referat-ordin&#xE6;rt-afdelingsm&#xF8;de-2025.pdf)

###

                                                2024

[1-21 2024 Regnskab for rådighedsbeløb 2023](https://nfbo.dk/p/Boligdata/Filer/Afdelinger/1-21/Afdelingsm&#xF8;der/2024/1-21-2024-Regnskab-for-r&#xE5;dighedsbel&#xF8;b-2023.pdf)
                                            [1-21 2024 Referat ordinært afdelingsmøde](https://nfbo.dk/p/Boligdata/Filer/Afdelinger/1-21/Afdelingsm&#xF8;der/2024/1-21-2024-Referat-ordin&#xE6;rt-afdelingsm&#xF8;de.pdf)
                                            [1-21 2024 Langtidsplan](https://nfbo.dk/p/Boligdata/Filer/Afdelinger/1-21/Afdelingsm&#xF8;der/2024/1-21-2024-Langtidsplan-01-01-2025.pdf)
                                            [1-21 2024 Forslag indskrevet](https://nfbo.dk/p/Boligdata/Filer/Afdelinger/1-21/Afdelingsm&#xF8;der/2024/1-21-2024-Forslag-indskrevet.pdf)
                                            [1-21 2024 Dagsorden ordinært afdelingsmøde](https://nfbo.dk/p/Boligdata/Filer/Afdelinger/1-21/Afdelingsm&#xF8;der/2024/1-21-2024-Dagsorden-ordin&#xE6;rt-afdelingsm&#xF8;de.pdf)
                                            [1-21 2024 Budget 2025](https://nfbo.dk/p/Boligdata/Filer/Afdelinger/1-21/Afdelingsm&#xF8;der/2024/1-21-2024-Budget-2025.pdf)

###

                                                2023

[1-21 2023 Regnskab for rådighedsbeløb 2022](https://nfbo.dk/p/Boligdata/Filer/Afdelinger/1-21/Afdelingsm&#xF8;der/2023/1-21-2023-Regnskab-for-r&#xE5;dighedsbel&#xF8;b-2022.pdf)
                                            [1-21 2023 Referat ordinært afdelingsmøde](https://nfbo.dk/p/Boligdata/Filer/Afdelinger/1-21/Afdelingsm&#xF8;der/2023/1-21-2023-Referat-ordin&#xE6;rt-afdelingsm&#xF8;de.pdf)
                                            [1-21 2023 Forslag indskrevet](https://nfbo.dk/p/Boligdata/Filer/Afdelinger/1-21/Afdelingsm&#xF8;der/2023/1-21-2023-Forslag-indskrevet.pdf)
                                            [1-21 2023 Dagsorden ordinært afdelingsmøde](https://nfbo.dk/p/Boligdata/Filer/Afdelinger/1-21/Afdelingsm&#xF8;der/2023/1-21-2023-Dagsorden-ordin&#xE6;rt-afdelingsm&#xF8;de.pdf)
                                            [1-21 2023 Budget 2024](https://nfbo.dk/p/Boligdata/Filer/Afdelinger/1-21/Afdelingsm&#xF8;der/2023/1-21-2023-Budget-2024.pdf)

###

                                                2022

[1-21 2022 Referat ordinært afdelingsmøde](https://nfbo.dk/p/Boligdata/Filer/Afdelinger/1-21/Afdelingsm&#xF8;der/2022/1-21-2022-Referat-ordin&#xE6;rt-afdelingsm&#xF8;de.pdf)
                                            [1-21 2022 Rådighedsbeløb for afdelingsbestyrelsen 2021](https://nfbo.dk/p/Boligdata/Filer/Afdelinger/1-21/Afdelingsm&#xF8;der/2022/1-21-2022-R&#xE5;dighedsbel&#xF8;b-for-afdelingsbestyrelsen-2021.pdf)
                                            [1-21 2022 Forslag indskrevet](https://nfbo.dk/p/Boligdata/Filer/Afdelinger/1-21/Afdelingsm&#xF8;der/2022/1-21-2022-Forslag-indskrevet.pdf)
                                            [1-21 2022 Dagsorden ordinært afdelingsmøde](https://nfbo.dk/p/Boligdata/Filer/Afdelinger/1-21/Afdelingsm&#xF8;der/2022/1-21-2022-Dagsorden-ordin&#xE6;rt-afdelingsm&#xF8;de.pdf)
                                            [1-21 2022 Budget 2023](https://nfbo.dk/p/Boligdata/Filer/Afdelinger/1-21/Afdelingsm&#xF8;der/2022/1-21-2022-Budget-2023.pdf)

###

                                                2021

[1-21 2021 Regnskab for rådighedsbeløb 2020](https://nfbo.dk/p/Boligdata/Filer/Afdelinger/1-21/Afdelingsm&#xF8;der/2021/1-21-2021-Regnskab-for-r&#xE5;dighedsbel&#xF8;b-2020.pdf)
                                            [1-21 2021 Referat ordinært afdelingsmøde](https://nfbo.dk/p/Boligdata/Filer/Afdelinger/1-21/Afdelingsm&#xF8;der/2021/1-21-2021-Referat-ordin&#xE6;rt-afdelingsm&#xF8;de.pdf)
                                            [1-21 2021 Forslag indskrevet](https://nfbo.dk/p/Boligdata/Filer/Afdelinger/1-21/Afdelingsm&#xF8;der/2021/1-21-2021-Forslag-indskrevet.pdf)
                                            [1-21 2021 Dagsorden ordinært afdelingsmøde](https://nfbo.dk/p/Boligdata/Filer/Afdelinger/1-21/Afdelingsm&#xF8;der/2021/1-21-2021-Dagsorden-ordin&#xE6;rt-afdelingsm&#xF8;de.pdf)
                                            [1-21 2021 Budget 2022](https://nfbo.dk/p/Boligdata/Filer/Afdelinger/1-21/Afdelingsm&#xF8;der/2021/1-21-2021-Budget-2022.pdf)

## Afdelingsbestyrelsesmedlemmer - Kontaktpersoner

Navn

Titel

Email

Telefon

Beata Basiak

Kontaktperson

beata.basiak@hotmail.com

41103011

Sandie Martinsen

Kontaktperson

martinsensandie@gmail.com

53277576
