---
title: "Lindevænget/Vendsysselvej"
description: "Lindevænget/Vendsysselvej"
date: "2026-03-19"
created: "2024-10-03"
---

-
-
-

https://maps.google.dk/?q=54.75354,11.891954

# Lindevænget/Vendsysselvej

Afdeling 11

## Velkommen til afdeling 11 Lindevænget/Vendsysselvej

Afdelingen består af 182 boliger i etagebyggeri opført i 1974.
Herudover er der 16 carporte til udlejning blandt afdelingens beboere.

## Vigtige meddelelser for beboere

Referat af møde i afdelingsbestyrelsenRøgfri boligafdelingHusdyr

## Referat af møde i afdelingsbestyrelsen

Afdelingsbestyrelsen holdt møde den 17. marts 2026 - se referatet [her.](https://nfbo.dk/p/Boligdata/Filer/Afdelinger/1-11/Dagsorden og referat i afdelingsbestyrelsen mv/1-11-2026-03-17-Referat-af-bestyrelsesmøde---med-afd.-9.pdf "her.")

## Referat af møde i afdelingsbestyrelsen

Afdelingsbestyrelsen holdt møde den 17. marts 2026 - se referatet [her.](https://nfbo.dk/p/Boligdata/Filer/Afdelinger/1-11/Dagsorden og referat i afdelingsbestyrelsen mv/1-11-2026-03-17-Referat-af-bestyrelsesmøde---med-afd.-9.pdf "her.")

                                Luk

## Røgfri boligafdeling

Afdelingsmødet har besluttet at gøre boliger, der fremadrettet bliver ledige, røgfrie. Det vil sige, at beboere, der flytter ind efter 1. januar 2023 ikke må ryge inde i boligen, men gerne på altanen eller tilsvarende uderum. Denne regel gælder ikke for ældreboligerne Vendsysselvej 31 og 33.

## Røgfri boligafdeling

Afdelingsmødet har besluttet at gøre boliger, der fremadrettet bliver ledige, røgfrie. Det vil sige, at beboere, der flytter ind efter 1. januar 2023 ikke må ryge inde i boligen, men gerne på altanen eller tilsvarende uderum. Denne regel gælder ikke for ældreboligerne Vendsysselvej 31 og 33.

                                Luk

## Husdyr

Det er tilladt at holde 1 indekat i afdelingen - [læs mere her](https://nfbo.dk/p/Boligdata/Afdelinger/1-11/Nyheder/Husordensregler-afd-11-2023.pdf "læs mere her ")- under afsnittet "Hensyn: Husdyr".

## Husdyr

Det er tilladt at holde 1 indekat i afdelingen - [læs mere her](https://nfbo.dk/p/Boligdata/Afdelinger/1-11/Nyheder/Husordensregler-afd-11-2023.pdf "læs mere her ")- under afsnittet "Hensyn: Husdyr".

                                Luk

## Faciliteter

Husdyr

Ja

Det er tilladt at holde 1 indekat, jf. afdelingens husorden.

Hvidevarer

Ja

Ud over komfur er der i lejlighederne også installeret køleskab.

Selskabslokale

Nej

Vaskeri

Ja

Der er tilknyttet fællesvaskeri til benyttelse af afdelingens beboere.

## Lejemål i afdelingen

Lejligheder

1 værelse

boliger

Lejligheder

2 værelser

boliger

Ældre-/letkollektiveboliger

2 værelser

boliger

Lejligheder

3 værelser

boliger

Ældre-/letkollektiveboliger

3 værelser

boliger

Boligtype

Værelser

Størrelse

Husleje

Indskud/dp

Plantegning

Lejligheder

1

37 m²

1562 kr.

10100 kr.

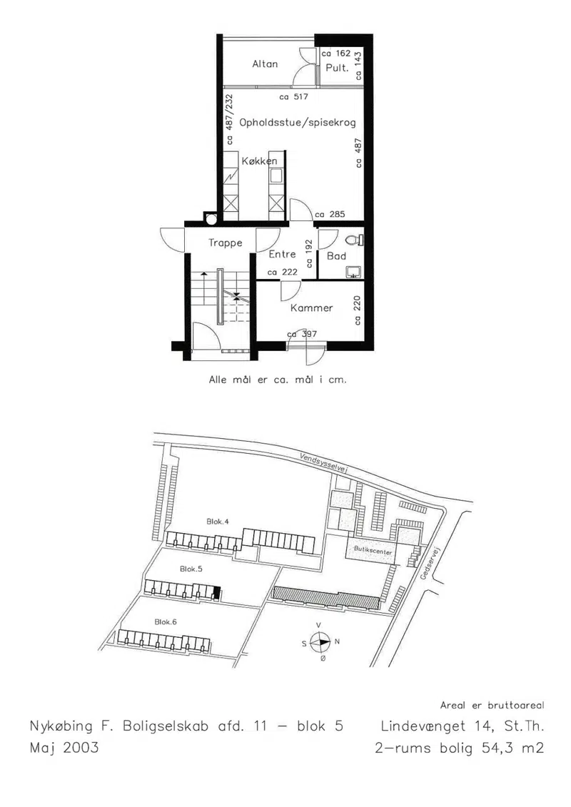
Lejligheder

2

54.3 m²

4104 kr.

14800 kr.

![](https://nfbo.dk/i/MOLIRIMEDIA/9aabf8ef-fc14-44ef-f761-08dd6148a5be?width=800)

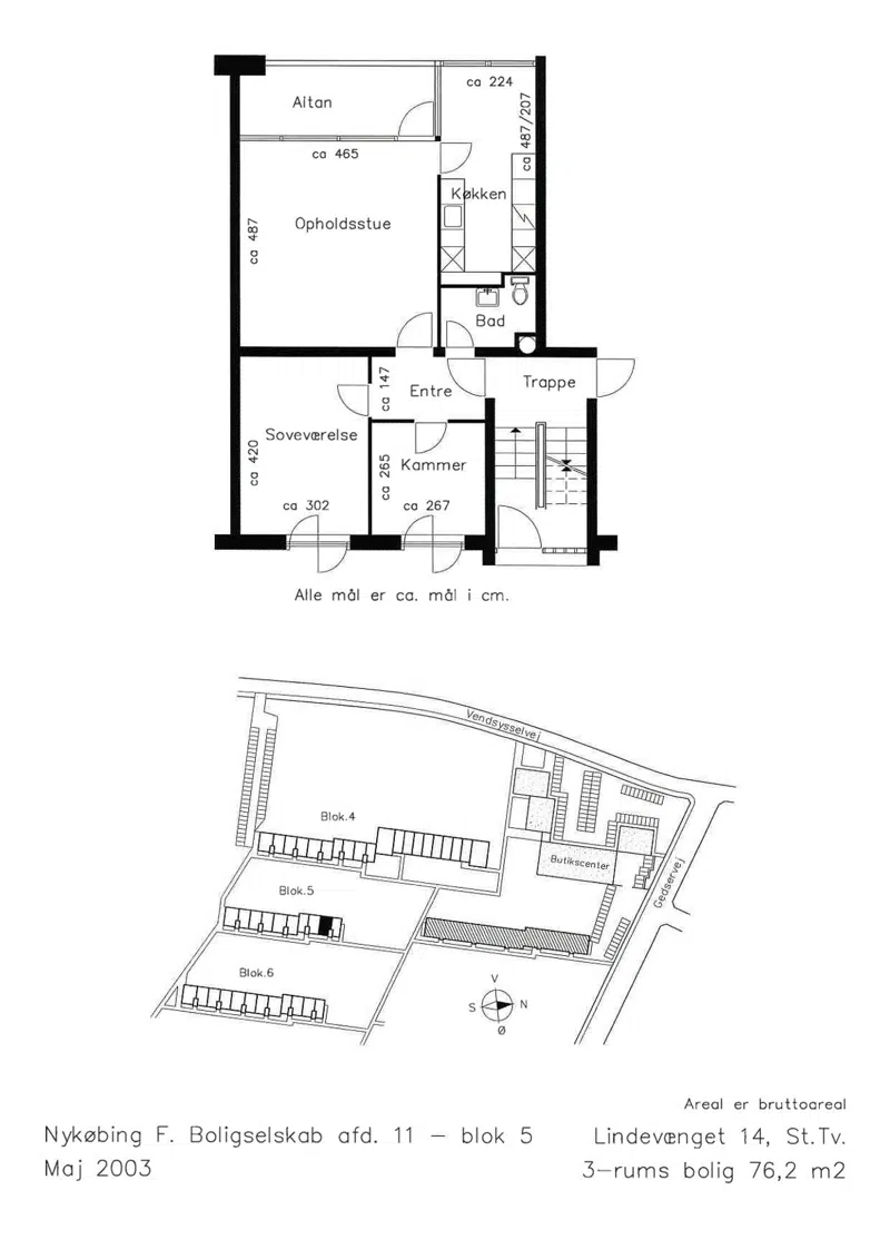
Lejligheder

3

76 m²

5249 kr.

20800 kr.

![](https://nfbo.dk/i/MOLIRIMEDIA/2198bac2-1ed1-4505-fa64-08dd6148a5be?width=800)

## Området

Bibliotek

meter

Park/natur

meter

Træningsmuligheder

meter

Offentlig transport

meter

Indkøbsmuligheder

meter

Skole

meter

Institution

meter

 Vaskeri

 Har du brug for hjælp til vaskerierne?

                            [Vaskeri](https://nfbo.dk/MOLIRIPAGE/b489126a-fc7f-43a8-af5e-39b079ef50d6)

 Vagtordning

                            [Vagtordning](https://nfbo.dk/MOLIRIPAGE/716828b6-143e-4ce7-aa2e-e4104f905a1f)

## Dokumenter

Afdeling 11 dokumenter

###

                                                Arrangementer

[1-11 2025 Sommerudflugt - invitation til beboerne](https://nfbo.dk/p/Boligdata/Filer/Afdelinger/1-11/Arrangementer/1-11-2025-Sommerudflugt-2025-indbydelse-til-alle.pdf)
                                            [1-11 2024-11-23 Julehygge](https://nfbo.dk/p/Boligdata/Filer/Afdelinger/1-11/Arrangementer/1-11-2024-11-23-Julehygge.pdf)
                                            [1-11 2024 Sommerudflugt - invitation til beboerne](https://nfbo.dk/p/Boligdata/Filer/Afdelinger/1-11/Arrangementer/1-11-2024-07-24-Sommerudflugt-2024-indbydelse-til-alle.pdf)
                                            [1-11 2023-11-22 Ugeavisen Krolfbanen indviet](https://nfbo.dk/p/Boligdata/Filer/Afdelinger/1-11/Arrangementer/1-11-2023-11-22-Ugeavisen-Krolfbanen-indviet.pdf)
                                            [1-11 2023 Sommerudflugt - invitation til beboerne](https://nfbo.dk/p/Boligdata/Filer/Afdelinger/1-11/Arrangementer/1-11-2023-07-26-Sommerudflugt-2023-indbydelse-til-alle.pdf)
                                            [1-11 2023-06-23 Sommer arrangement](https://nfbo.dk/p/Boligdata/Filer/Afdelinger/1-11/Arrangementer/1-11-2023-06-23-Sommer-arrangement.pdf)
                                            [1-11 2021-10-17 Halloween arrangement](https://nfbo.dk/p/Boligdata/Filer/Afdelinger/1-11/Arrangementer/1-11-2021-10-17-Haloween-arrangement.pdf)
                                            [1-11 2021 Tur til Langeland - invitation til beboerne](https://nfbo.dk/p/Boligdata/Filer/Afdelinger/1-11/Arrangementer/1-11-2021-08-08-Tur-til-Langeland.pdf)

###

                                                Dagsorden og referat i afdelingsbestyrelsen mv

[1-11 2026-03-17 Referat af bestyrelsesmøde - med afd. 9](https://nfbo.dk/p/Boligdata/Filer/Afdelinger/1-11/Dagsorden%20og%20referat%20i%20afdelingsbestyrelsen%20mv/1-11-2026-03-17-Referat-af-bestyrelsesm&#xF8;de---med-afd.-9.pdf)
                                            [1-11 2026-01-08 Referat af bestyrelsesmøde - med afd. 9](https://nfbo.dk/p/Boligdata/Filer/Afdelinger/1-11/Dagsorden%20og%20referat%20i%20afdelingsbestyrelsen%20mv/1-11-2026-01-08-Referat-af-bestyrelsesm&#xF8;de---med-afd.-9.pdf)
                                            [1-11 2025-11-27 Referat af uformelt bestyrelsesmøde - med afd. 9](https://nfbo.dk/p/Boligdata/Filer/Afdelinger/1-11/Dagsorden%20og%20referat%20i%20afdelingsbestyrelsen%20mv/1-11-2025-11-27-Referat-af-uformelt-bestyrelsesm&#xF8;de-med-afd.-9.pdf)
                                            [1-11 2025-10-30 Referat af bestyrelsesmøde - med afd. 9](https://nfbo.dk/p/Boligdata/Filer/Afdelinger/1-11/Dagsorden%20og%20referat%20i%20afdelingsbestyrelsen%20mv/1-11-2025-10-30-Referat-af-afdelingsbestyrelsesm&#xF8;de-afd-9-11.pdf)
                                            [1-11 2025-10-06 Referat af bestyrelsesmøde - med afd. 9](https://nfbo.dk/p/Boligdata/Filer/Afdelinger/1-11/Dagsorden%20og%20referat%20i%20afdelingsbestyrelsen%20mv/1-11-2025-10-06-Referat-af-afdelingsbestyrelsesm&#xF8;de-afd-9-11--1-.pdf)
                                            [1-11 2025-07-23 Referat af bestyrelsesmøde - med afd. 9](https://nfbo.dk/p/Boligdata/Filer/Afdelinger/1-11/Dagsorden%20og%20referat%20i%20afdelingsbestyrelsen%20mv/1-11-2025-07-23-Referat-bestyrelsesm&#xF8;de-m.-afd.-9.pdf)
                                            [1-11 2025-02-05 Referat bestyrelsesmøde](https://nfbo.dk/p/Boligdata/Filer/Afdelinger/1-11/Dagsorden%20og%20referat%20i%20afdelingsbestyrelsen%20mv/1-11-2025-02-05-Referat-bestyrelsesm&#xF8;de.pdf)
                                            [1-11 2025-01-14 Referat bestyrelsesmøde](https://nfbo.dk/p/Boligdata/Filer/Afdelinger/1-11/Dagsorden%20og%20referat%20i%20afdelingsbestyrelsen%20mv/1-11-2025-01-14-Referat-bestyrelsesm&#xF8;de.pdf)
                                            [1-11 2024-10-29 Referat bestyrelsesmøde](https://nfbo.dk/p/Boligdata/Filer/Afdelinger/1-11/Dagsorden%20og%20referat%20i%20afdelingsbestyrelsen%20mv/1-11-2024-10-29-Referat-bestyrelsesm&#xF8;de.pdf)
                                            [1-11 2023-11-06 Referat bestyrelsesmøde](https://nfbo.dk/p/Boligdata/Filer/Afdelinger/1-11/Dagsorden%20og%20referat%20i%20afdelingsbestyrelsen%20mv/1-11-2023-11-06-Referat-bestyrelsesm&#xF8;de.pdf)
                                            [1-11 2023-09-25 Referat bestyrelsesmøde](https://nfbo.dk/p/Boligdata/Filer/Afdelinger/1-11/Dagsorden%20og%20referat%20i%20afdelingsbestyrelsen%20mv/1-11-2023-09-25-Referat-bestyrelsesm&#xF8;de.pdf)
                                            [1-11 2023-08-14 Referat bestyrelsesmøde](https://nfbo.dk/p/Boligdata/Filer/Afdelinger/1-11/Dagsorden%20og%20referat%20i%20afdelingsbestyrelsen%20mv/1-11-2023-08-14-Referat-bestyrelsesm&#xF8;de.pdf)
                                            [1-11 2023-06-05 Referat bestyrelsesmøde](https://nfbo.dk/p/Boligdata/Filer/Afdelinger/1-11/Dagsorden%20og%20referat%20i%20afdelingsbestyrelsen%20mv/1-11-2023-06-05-Referat-bestyrelsesm&#xF8;de.pdf)
                                            [1-11 2023-05-08 Referat bestyrelsesmøde](https://nfbo.dk/p/Boligdata/Filer/Afdelinger/1-11/Dagsorden%20og%20referat%20i%20afdelingsbestyrelsen%20mv/1-11-2023-05-08-Referat-bestyrelsesm&#xF8;de.pdf)
                                            [1-11 2023-03-15 Referat bestyrelsesmøde](https://nfbo.dk/p/Boligdata/Filer/Afdelinger/1-11/Dagsorden%20og%20referat%20i%20afdelingsbestyrelsen%20mv/1-11-2023-03-15-Referat-bestyrelsesm&#xF8;de.pdf)
                                            [1-11 2023-01-16 Referat bestyrelsesmøde](https://nfbo.dk/p/Boligdata/Filer/Afdelinger/1-11/Dagsorden%20og%20referat%20i%20afdelingsbestyrelsen%20mv/1-11-2023-01-16-Referat-bestyrelsesm&#xF8;de.pdf)
                                            [1-11 2022-11-01 Referat bestyrelsesmøde](https://nfbo.dk/p/Boligdata/Filer/Afdelinger/1-11/Dagsorden%20og%20referat%20i%20afdelingsbestyrelsen%20mv/1-11-2022-11-01-Referat-bestyrelsesm&#xF8;de.pdf)
                                            [1-11 2022-08-22 Referat bestyrelsesmøde](https://nfbo.dk/p/Boligdata/Filer/Afdelinger/1-11/Dagsorden%20og%20referat%20i%20afdelingsbestyrelsen%20mv/1-11-2022-08-22-Referat-bestyrelsesm&#xF8;de.pdf)
                                            [1-11 2022-06-15 Referat bestyrelsesmøde](https://nfbo.dk/p/Boligdata/Filer/Afdelinger/1-11/Dagsorden%20og%20referat%20i%20afdelingsbestyrelsen%20mv/1-11-2022-06-15-Referat-bestyrelsesm&#xF8;de.pdf)
                                            [1-11 2022-04-20 Referat bestyrelsesmøde](https://nfbo.dk/p/Boligdata/Filer/Afdelinger/1-11/Dagsorden%20og%20referat%20i%20afdelingsbestyrelsen%20mv/1-11-2022-04-20-Referat-bestyrelsesm&#xF8;de.pdf)
                                            [1-11 2022-02-08 Referat bestyrelsesmøde](https://nfbo.dk/p/Boligdata/Filer/Afdelinger/1-11/Dagsorden%20og%20referat%20i%20afdelingsbestyrelsen%20mv/1-11-2022-02-08-Referat-bestyrelsesm&#xF8;de.pdf)
                                            [1-11 2021-12-07 Referat bestyrelsesmøde](https://nfbo.dk/p/Boligdata/Filer/Afdelinger/1-11/Dagsorden%20og%20referat%20i%20afdelingsbestyrelsen%20mv/1-11-2021-12-07-Referat-bestyrelsesm&#xF8;de.pdf)
                                            [1-11 2021-10-11 Referat bestyrelsesmøde](https://nfbo.dk/p/Boligdata/Filer/Afdelinger/1-11/Dagsorden%20og%20referat%20i%20afdelingsbestyrelsen%20mv/1-11-2021-10-11-Referat-bestyrelsesm&#xF8;de.pdf)

###

                                                Energimærkning

[1-11 Energimærke - Vendsysselvej 31-43](https://nfbo.dk/p/Boligdata/Filer/Afdelinger/1-11/Energim&#xE6;rkning/1-11-Energim&#xE6;rke---Vendsysselvej-31-43.pdf)
                                            [1-11 Energimærke - Lindevænget 2-12](https://nfbo.dk/p/Boligdata/Filer/Afdelinger/1-11/Energim&#xE6;rkning/1-11-Energim&#xE6;rke---Lindev&#xE6;nget-2-12.pdf)
                                            [1-11 Energimærke - Lindevænget 14-22](https://nfbo.dk/p/Boligdata/Filer/Afdelinger/1-11/Energim&#xE6;rkning/1-11-Energim&#xE6;rke---Lindev&#xE6;nget-14-22.pdf)

###

                                                Informationer

[1-11 2025-01-09 Henstilling af storskrald m.m.](https://nfbo.dk/p/Boligdata/Filer/Afdelinger/1-11/Informationer/1-11-2025-01-09-Henstilling-af-storskrald-m.m..pdf)
                                            [1-11 2024-08-19 Ny indsamlingsordning af affald - Lindevænget og Vendsysselvej](https://nfbo.dk/p/Boligdata/Filer/Afdelinger/1-11/Informationer/1-11-2024-08-19-Ny-indsamlingsordning-af-affald---Lindev&#xE6;nget-og-Vendsysselvej.pdf)
                                            [1-11 2024-08-15 Ny indsamlingsordning af affald - Vendsysselvej 31-41 og 47-49](https://nfbo.dk/p/Boligdata/Filer/Afdelinger/1-11/Informationer/1-11-2024-08-15-Ny-indsamlingsordning-af-affald---Vendsysselvej-31-41-og-47-49.pdf)
                                            [1-11 2024-05-01 Nykøbing F Boligselskab - Legepladsinspektion](https://nfbo.dk/p/Boligdata/Filer/Afdelinger/1-11/Informationer/1-11-2024-05-01-Nyk&#xF8;bing-F-Boligselskab---Legepladsinspektion.pdf)
                                            [1-11 2021-07-19 Orientering om parkeringspladser](https://nfbo.dk/p/Boligdata/Filer/Afdelinger/1-11/Informationer/1-11-2021-07-19-Orientering-om-parkeringspladser.pdf)
                                            [1-11 2021-04-08 Orientering om lås på vaskerier](https://nfbo.dk/p/Boligdata/Filer/Afdelinger/1-11/Informationer/1-11-2021-04-08-Orientering-om-l&#xE5;s-p&#xE5;-vaskerier.pdf)

###

                                                Regler i afdelingen

[1-11 2025 Forretningsorden for afdelingsbestyrelsen - sammen med afd. 9](https://nfbo.dk/p/Boligdata/Filer/Afdelinger/1-11/Regler%20i%20afdelingen/Forretningsorden-for-afdelingsbestyrelsen-afd-9-og-11-2025-2026-underskrevet.pdf)
                                            [1-11 2016 Vedligeholdelsesregler](https://nfbo.dk/p/Boligdata/Filer/Afdelinger/1-11/Regler%20i%20afdelingen/1-11-Vedligeholdelsesregler.pdf)
                                            [1-11 1998 Regler for grillpladser](https://nfbo.dk/p/Boligdata/Filer/Afdelinger/1-11/Regler%20i%20afdelingen/1-11-Regler-for-grillpladser.pdf)
                                            [1-11 2024 Regler  for lån af bestyrelsens mødelokale](https://nfbo.dk/p/Boligdata/Filer/Afdelinger/1-11/Regler%20i%20afdelingen/1-11-Regler--for-l&#xE5;n-af-bestyrelsens-m&#xF8;delokale-2024.pdf)
                                            [1-11 2016 Lokale regler](https://nfbo.dk/p/Boligdata/Filer/Afdelinger/1-11/Regler%20i%20afdelingen/1-11-Lokale-regler-2016.pdf)
                                            [01-11 2026 Husordensregler](https://nfbo.dk/p/Boligdata/Filer/Afdelinger/1-11/Regler%20i%20afdelingen/1-11-Husordensregler-2026.pdf)
                                            [1-11 2025 Forretningsorden afdelingsmødet sammen med afd. 9](https://nfbo.dk/p/Boligdata/Filer/Afdelinger/1-11/Regler%20i%20afdelingen/1-11-Forretningsorden-afdelingsm&#xF8;det-afd-9-og-11-2025.pdf)
                                            [1-11 1998 Affaldsregulativ - storskrald](https://nfbo.dk/p/Boligdata/Filer/Afdelinger/1-11/Regler%20i%20afdelingen/1-11-Affaldsregulativ.pdf)

###

                                                Selskabslokale

[1-5 Selskabslokale Grønttorvet](https://nfbo.dk/p/Boligdata/Filer/Afdelinger/1-11/Selskabslokale/1-5-Selskabslokale-Gr&#xF8;nttorvet%281%29.pdf)
                                            [1-3 Selskabslokale Fjordvej 43](https://nfbo.dk/p/Boligdata/Filer/Afdelinger/1-11/Selskabslokale/1-3-Selskabslokale-Fjordvej-43%281%29.pdf)
                                            [1-17 Selskabslokale Frisegade 33](https://nfbo.dk/p/Boligdata/Filer/Afdelinger/1-11/Selskabslokale/1-17-Selskabslokale-Frisegade-33%281%29.pdf)
                                            [1-13 Selskabslokale Holger Brodthagensvej 163](https://nfbo.dk/p/Boligdata/Filer/Afdelinger/1-11/Selskabslokale/1-13-Selskabslokale-Holger-Brodthagensvej-163%281%29.pdf)

## Afdelingsmøder

###

                                                2025

[1-11 2025 Bilag til forslag 2](https://nfbo.dk/p/Boligdata/Filer/Afdelinger/1-11/Afdelingsm&#xF8;der/2025/Udkast-forretningsorden-afdelingsm&#xF8;det-afd-9-og-11-2025.pdf)
                                            [1-11 2025 Regnskab for rådighedsbeløb 202](https://nfbo.dk/p/Boligdata/Filer/Afdelinger/1-11/Afdelingsm&#xF8;der/2025/Regnskab-for-r&#xE5;dighedsbel&#xF8;b-2024-afdeling-11.pdf)
                                            [1-11 2025 Langtidsplan](https://nfbo.dk/p/Boligdata/Filer/Afdelinger/1-11/Afdelingsm&#xF8;der/2025/Langtidsplan-2025-afdeling-11.pdf)
                                            [1-11 2025 Forslag indskrevet](https://nfbo.dk/p/Boligdata/Filer/Afdelinger/1-11/Afdelingsm&#xF8;der/2025/Forslag-indskrevet-afdeling-11-2025.pdf)
                                            [1-11 2025 Dagsorden ordinært afdelingsmøde](https://nfbo.dk/p/Boligdata/Filer/Afdelinger/1-11/Afdelingsm&#xF8;der/2025/Dagsorden-ordin&#xE6;rt-m&#xF8;de-2025-afdeling-11.pdf)
                                            [1-11 2025 Budget 2026](https://nfbo.dk/p/Boligdata/Filer/Afdelinger/1-11/Afdelingsm&#xF8;der/2025/Budget-2026-afdeling-11.pdf)
                                            [1-11 2025 Referat ordinært afdelingsmøde](https://nfbo.dk/p/Boligdata/Filer/Afdelinger/1-11/Afdelingsm&#xF8;der/2025/01-11-referat-ordin&#xE6;rt-afdelingsm&#xF8;de-2025.pdf)

###

                                                2024

[1-11 2024 Regnskab for rådighedsbeløb 2023](https://nfbo.dk/p/Boligdata/Filer/Afdelinger/1-11/Afdelingsm&#xF8;der/2024/1-11-2024-Regnskab-for-r&#xE5;dighedsbel&#xF8;b-2023.pdf)
                                            [1-11 2024 Referat ordinært afdelingsmøde](https://nfbo.dk/p/Boligdata/Filer/Afdelinger/1-11/Afdelingsm&#xF8;der/2024/1-11-2024-Referat-ordin&#xE6;rt-afdelingsm&#xF8;de.pdf)
                                            [1-11 2024 Langtidsplan](https://nfbo.dk/p/Boligdata/Filer/Afdelinger/1-11/Afdelingsm&#xF8;der/2024/1-11-2024-Langtidsplan-pr.-1.1.2025.pdf)
                                            [1-11 2024 Forslag indskrevet](https://nfbo.dk/p/Boligdata/Filer/Afdelinger/1-11/Afdelingsm&#xF8;der/2024/1-11-2024-Forslag-indskrevet.pdf)
                                            [1-11 2024 Dagsorden ordinært afdelingsmøde](https://nfbo.dk/p/Boligdata/Filer/Afdelinger/1-11/Afdelingsm&#xF8;der/2024/1-11-2024-Dagsorden-ordin&#xE6;rt-afdelingsm&#xF8;de.pdf)
                                            [1-11 2024 Budget 2025](https://nfbo.dk/p/Boligdata/Filer/Afdelinger/1-11/Afdelingsm&#xF8;der/2024/1-11-2024-Budget-2025.pdf)

###

                                                2023

[1-11 2023 Regnskab for rådighedsbeløb 2022](https://nfbo.dk/p/Boligdata/Filer/Afdelinger/1-11/Afdelingsm&#xF8;der/2023/1-11-2023-Regnskab-for-r&#xE5;dighedsbel&#xF8;b-2022.pdf)
                                            [1-11 2023 Referat ordinært afdelingsmøde](https://nfbo.dk/p/Boligdata/Filer/Afdelinger/1-11/Afdelingsm&#xF8;der/2023/1-11-2023-Referat-ordin&#xE6;rt-afdelingsm&#xF8;de.pdf)
                                            [1-11 2023 Forslag indskrevet](https://nfbo.dk/p/Boligdata/Filer/Afdelinger/1-11/Afdelingsm&#xF8;der/2023/1-11-2023-Forslag-indskrevet.pdf)
                                            [1-11 2023 Dagsorden ordinært afdelingsmøde](https://nfbo.dk/p/Boligdata/Filer/Afdelinger/1-11/Afdelingsm&#xF8;der/2023/1-11-2023-Dagsorden-ordin&#xE6;rt-afdelingsm&#xF8;de.pdf)
                                            [1-11 2023 Budget 2024](https://nfbo.dk/p/Boligdata/Filer/Afdelinger/1-11/Afdelingsm&#xF8;der/2023/1-11-2023-Budget-2024.pdf)

###

                                                2022

[1-11 2022-09-13 Regnskab for rådighedsbeløb 2021](https://nfbo.dk/p/Boligdata/Filer/Afdelinger/1-11/Afdelingsm&#xF8;der/2022/1-11-2022-Regnskab-for-r&#xE5;dighedsbel&#xF8;b-2021.pdf)
                                            [1-11 2022-09-13 Referat ordinært afdelingsmøde](https://nfbo.dk/p/Boligdata/Filer/Afdelinger/1-11/Afdelingsm&#xF8;der/2022/1-11-2022-Referat-ordin&#xE6;rt-afdelingsm&#xF8;de.pdf)
                                            [1-11 2022-03-09 Referat ekstraordinært afdelingsmøde](https://nfbo.dk/p/Boligdata/Filer/Afdelinger/1-11/Afdelingsm&#xF8;der/2022/1-11-2022-Referat-ekstraordin&#xE6;rt-afdelingsm&#xF8;de.pdf)
                                            [1-11 2022-09-13 Forslag indskrevet](https://nfbo.dk/p/Boligdata/Filer/Afdelinger/1-11/Afdelingsm&#xF8;der/2022/1-11-2022-Forslag-indskrevet.pdf)
                                            [1-11 2022-09-13 Dagsorden ordinært afdelingsmøde](https://nfbo.dk/p/Boligdata/Filer/Afdelinger/1-11/Afdelingsm&#xF8;der/2022/1-11-2022-Dagsorden-ordin&#xE6;rt-afdelingsm&#xF8;de.pdf)
                                            [1-11 2022-03-09 Dagsorden ekstraordinært møde](https://nfbo.dk/p/Boligdata/Filer/Afdelinger/1-11/Afdelingsm&#xF8;der/2022/1-11-2022-Dagsorden-ekstraordin&#xE6;rt-m&#xF8;de.pdf)
                                            [1-11 2022-09-13 Budget 2023](https://nfbo.dk/p/Boligdata/Filer/Afdelinger/1-11/Afdelingsm&#xF8;der/2022/1-11-2022-Budget-2023.pdf)

###

                                                2021

[1-11 2021 Regnskab for rådighedsbeløb 2020](https://nfbo.dk/p/Boligdata/Filer/Afdelinger/1-11/Afdelingsm&#xF8;der/2021/1-11-2021-Regnskab-for-r&#xE5;dighedsbel&#xF8;b-2020.pdf)
                                            [1-11 2021 Referat ordinært afdelingsmøde](https://nfbo.dk/p/Boligdata/Filer/Afdelinger/1-11/Afdelingsm&#xF8;der/2021/1-11-2021-Referat-ordin&#xE6;rt-afdelingsm&#xF8;de.pdf)
                                            [1-11 2021 Dagsorden ordinært afdelingsmøde](https://nfbo.dk/p/Boligdata/Filer/Afdelinger/1-11/Afdelingsm&#xF8;der/2021/1-11-2021-Dagsorden-ordin&#xE6;rt-afdelingsm&#xF8;de.pdf)
                                            [1-11 2021 Budget 2022](https://nfbo.dk/p/Boligdata/Filer/Afdelinger/1-11/Afdelingsm&#xF8;der/2021/1-11-2021-Budget-2022.pdf)

## Afdelingsbestyrelsesmedlemmer

Navn

Titel

Email

Telefon

Søren Mølager-Kjæp

Formand

Skjaep@gmail.com

41695063

Birgit Christiansen

Medlem

bac@live.dk

21284925

Celina Keis

Medlem

CelinaKeis@outlook.com

60435107

Kirsten Bull Jensen

Medlem

kirstenbulljensen@gmail.com

24677153

Mia Mølager-Kjæp

Medlem

mjm807@hotmail.com

28512579

Charlotte Berg Gårdred

Medlem

gaardred@hotmail.com

60161826
