---
title: "Møllebakken/Parkvej m.v."
description: "Møllebakken/Parkvej m.v."
date: "2026-04-16"
created: "2024-10-03"
---

-
-
-

https://maps.google.dk/?q=54.7813912,11.864283

# Møllebakken/Parkvej m.v.

Afdeling 6

## Velkommen til afdeling 6 Møllebakken/Parkvej m.v.

Afdelingen består af 188 boliger i etagebyggeri opført i 1962.
Herudover er der 39 garager og carporte til udlejning blandt afdelingens beboere.

## Vigtige meddelelser for beboere

Referat af ekstraordinært afdelingsmøde - renoveringssagRenoveringssagRøgfri boligafdeling

## Referat af ekstraordinært afdelingsmøde - renoveringssag

Der blev afholdt **ekstraordinært afdelingsmøde den 14. april 2026** om den kommende renoveringssag - læs referatet [her.](https://nfbo.dk/p/Boligdata/Filer/Afdelinger/1-6/Dagsorden og referat i afdelingsbestyrelsen mv/1-6-2026-04-14-Referat-ekstraordinært-afdelingsmøde.pdf "her.")

## Referat af ekstraordinært afdelingsmøde - renoveringssag

Der blev afholdt **ekstraordinært afdelingsmøde den 14. april 2026** om den kommende renoveringssag - læs referatet [her.](https://nfbo.dk/p/Boligdata/Filer/Afdelinger/1-6/Dagsorden og referat i afdelingsbestyrelsen mv/1-6-2026-04-14-Referat-ekstraordinært-afdelingsmøde.pdf "her.")

                                Luk

## Renoveringssag

Som aftalt på afdelingsmødet den 14. april 2026 er her plancherne fra gennemgang af renoveringssagen. Se mere [her.](https://nfbo.dk/p/Boligdata/Filer/Afdelinger/1-6/Renovering/MØL_Præsentation-d.-14.01.2025---Rev-A.pdf "her.")

## Renoveringssag

Som aftalt på afdelingsmødet den 14. april 2026 er her plancherne fra gennemgang af renoveringssagen. Se mere [her.](https://nfbo.dk/p/Boligdata/Filer/Afdelinger/1-6/Renovering/MØL_Præsentation-d.-14.01.2025---Rev-A.pdf "her.")

                                Luk

## Røgfri boligafdeling

Afdelingsmødet har besluttet at gøre boliger, der fremadrettet bliver ledige, røgfrie. Det vil sige, at beboere, der flytter ind efter 1. januar 2023 ikke må ryge inde i boligen, men gerne på altanen eller tilsvarende uderum.

## Røgfri boligafdeling

Afdelingsmødet har besluttet at gøre boliger, der fremadrettet bliver ledige, røgfrie. Det vil sige, at beboere, der flytter ind efter 1. januar 2023 ikke må ryge inde i boligen, men gerne på altanen eller tilsvarende uderum.

                                Luk

## Faciliteter

Husdyr

Nej

Iflg. afdelingens husorden er det ikke tilladt at holde husdyr.

Hvidevarer

Ja

Der er komfur i boligerne i denne afdeling.

Selskabslokale

Nej

Vaskeri

Ja

Der er tilknyttet fællesvaskeri til benyttelse af afdelingens beboere.

## Lejemål i afdelingen

Lejligheder

2 værelser

boliger

Lejligheder

3 værelser

boliger

Lejligheder

4 værelser

boliger

Boligtype

Værelser

Størrelse

Husleje

Indskud/dp

Plantegning

Lejligheder

2

60 m²

2552 kr.

16400 kr.

Lejligheder

2

50 m²

2595 kr.

13700 kr.

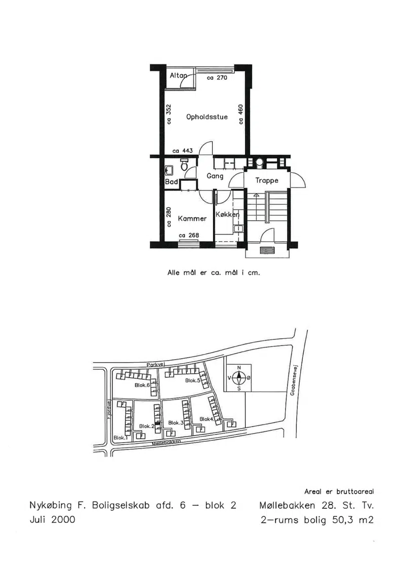
![](https://nfbo.dk/i/MOLIRIMEDIA/f09ee9fe-7e56-4a71-f52b-08dd6148a5be?width=800)

Lejligheder

3

85 m²

4837 kr.

23200 kr.

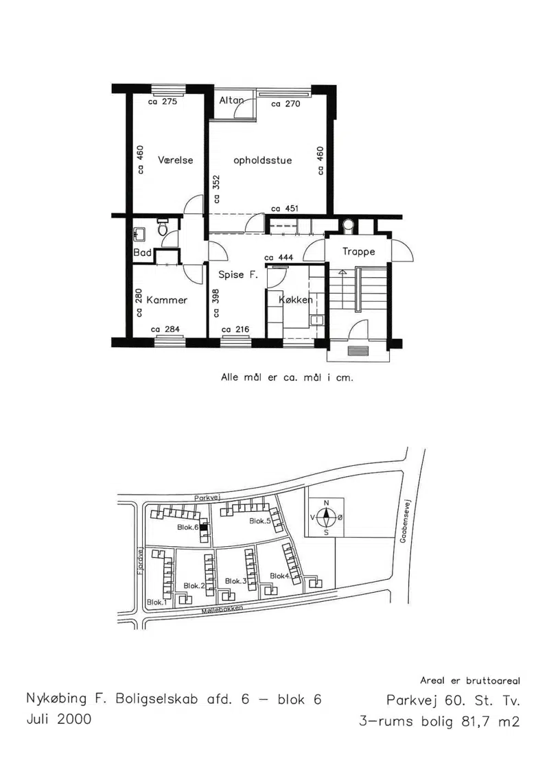
![](https://nfbo.dk/i/MOLIRIMEDIA/453fea7d-26ac-499b-fcf1-08dd6148a5be?width=800)

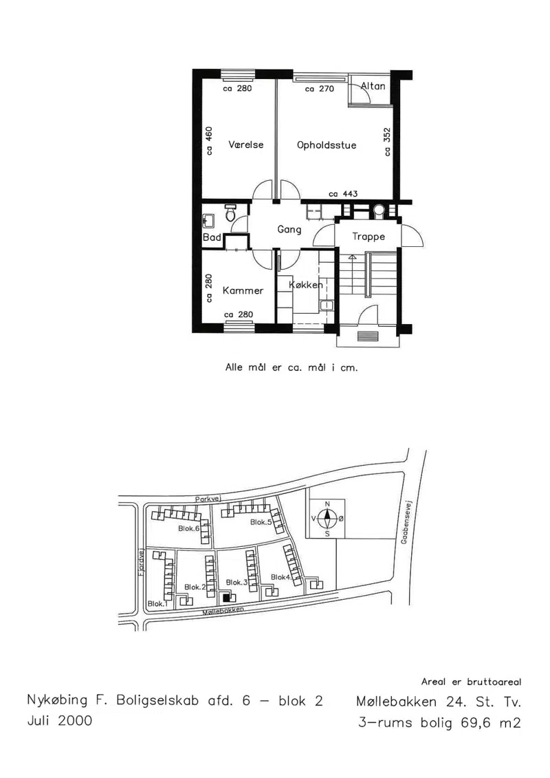
Lejligheder

3

82 m²

4659 kr.

22400 kr.

![](https://nfbo.dk/i/MOLIRIMEDIA/fa3565c1-b747-4dea-fb26-08dd6148a5be?width=800)

Lejligheder

3

70 m²

4250 kr.

19100 kr.

![](https://nfbo.dk/i/MOLIRIMEDIA/a18f4528-7081-4ca7-f8eb-08dd6148a5be?width=800)

Lejligheder

4

85 m²

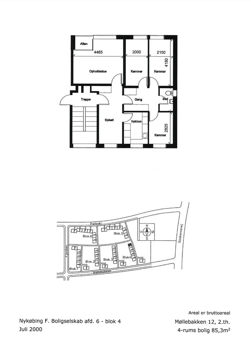
5087 kr.

23200 kr.

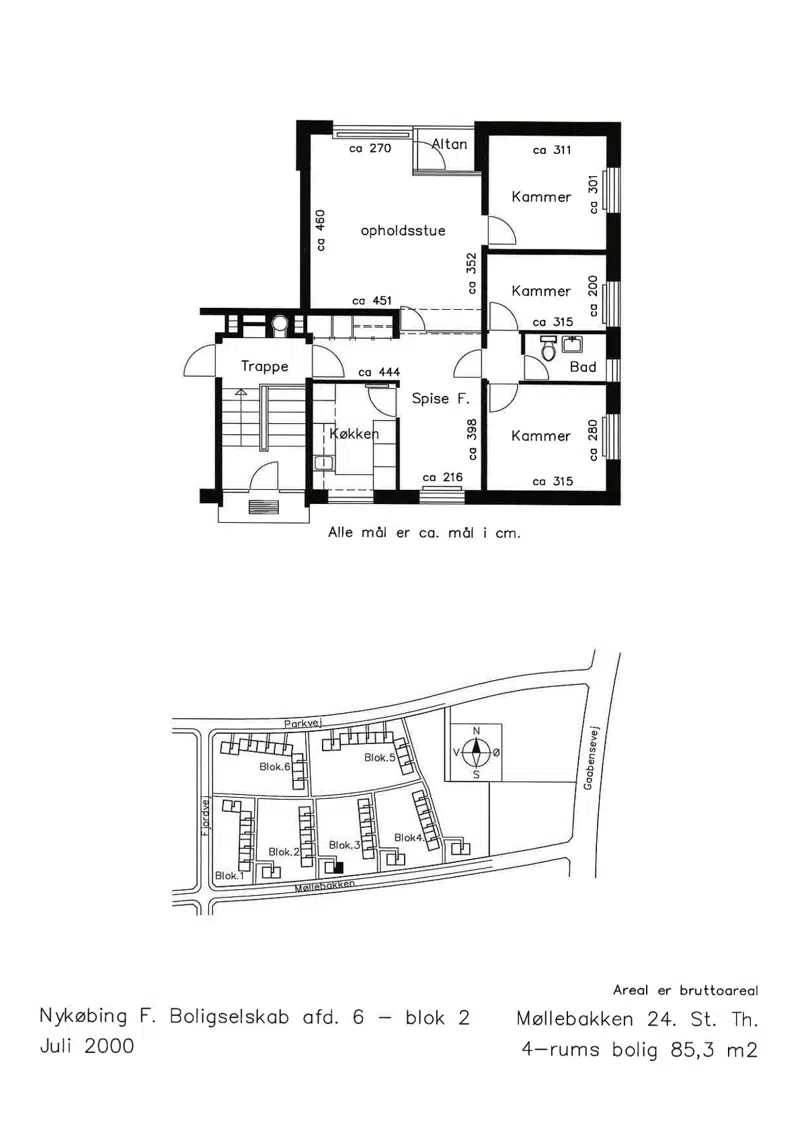
![](https://nfbo.dk/i/MOLIRIMEDIA/b4070f17-7030-460c-f32a-08dd6148a5be?width=800)

## Området

Bibliotek

meter

Park/natur

meter

Træningsmuligheder

meter

Offentlig transport

meter

Indkøbsmuligheder

meter

Skole

meter

Institution

meter

 Vaskeri

Har du brug for hjælp til vaskerierne?

                            [Vaskeri](https://nfbo.dk/MOLIRIPAGE/b489126a-fc7f-43a8-af5e-39b079ef50d6)

 Vagtordning

                            [Vagtordning](https://nfbo.dk/MOLIRIPAGE/716828b6-143e-4ce7-aa2e-e4104f905a1f)

## Dokumenter

Afdeling 6 dokumenter

###

                                                Arrangementer

[1-6 2025 Sommerudflugt - invitation til beboerne](https://nfbo.dk/p/Boligdata/Filer/Afdelinger/1-6/Arrangementer/1-6-2025-Sommerudflugt-2025-indbydelse-til-alle.pdf)
                                            [1-6 2025-10-23 Halloween](https://nfbo.dk/p/Boligdata/Filer/Afdelinger/1-6/Arrangementer/1-6-2025-Halloween.pdf)
                                            [1-6 2025-03-31 Banko invitation](https://nfbo.dk/p/Boligdata/Filer/Afdelinger/1-6/Arrangementer/1-6-2025-03-31-Banko-d.-31.03.25.pdf)
                                            [1-6 2024-12-01 Julelotteri](https://nfbo.dk/p/Boligdata/Filer/Afdelinger/1-6/Arrangementer/1-6-2024-12-01-Julelotteri.pdf)
                                            [1-6 2024-10-07 Spis sammen aften](https://nfbo.dk/p/Boligdata/Filer/Afdelinger/1-6/Arrangementer/1-6-2024-10-07-Spis-sammen-aften.pdf)
                                            [1-6 2024 Sommerudflugt - invitation til beboerne](https://nfbo.dk/p/Boligdata/Filer/Afdelinger/1-6/Arrangementer/1-6-2024-07-24-Sommerudflugt-2024-indbydelse-til-alle.pdf)
                                            [1-6 2024-05-15 Smørrebrødsaften](https://nfbo.dk/p/Boligdata/Filer/Afdelinger/1-6/Arrangementer/1-6-2024-05-15-Sm&#xF8;rrebr&#xF8;dsaften.pdf)
                                            [1-6 2024-03-27 Hotdog aften](https://nfbo.dk/p/Boligdata/Filer/Afdelinger/1-6/Arrangementer/1-6-2024-03-27-Hotdog-aften.pdf)
                                            [1-6 2024-02-25 Børnebanko invitation](https://nfbo.dk/p/Boligdata/Filer/Afdelinger/1-6/Arrangementer/1-6-2024-02-25-B&#xF8;rnebanko-invitation.pdf)
                                            [1-6 2023-11-05 Invitation banko](https://nfbo.dk/p/Boligdata/Filer/Afdelinger/1-6/Arrangementer/1-6-2023-11-05-Invitation-banko.pdf)
                                            [1-6 2023 Sommerudflugt - invitation til beboerne](https://nfbo.dk/p/Boligdata/Filer/Afdelinger/1-6/Arrangementer/1-6-2023-07-26-Sommerudflugt-2023-indbydelse-til-alle.pdf)
                                            [1-6 2022 Sommerudflugt - invitation til beboerne](https://nfbo.dk/p/Boligdata/Filer/Afdelinger/1-6/Arrangementer/1-6-2022-05-28-Sommerudflugt-2022-Indbydelse--til-Fransk-For&#xE5;r.pdf)
                                            [1-6 2022-05-10 Petanque 2022](https://nfbo.dk/p/Boligdata/Filer/Afdelinger/1-6/Arrangementer/1-6-2022-05-10-Petanque-2022.pdf)
                                            [1-6 2021-12-04 Invitation til julearrangement](https://nfbo.dk/p/Boligdata/Filer/Afdelinger/1-6/Arrangementer/1-6-2021-12-04-Invitation-til-julearrangement.pdf)
                                            [1-6 2021-09-06 Halloween](https://nfbo.dk/p/Boligdata/Filer/Afdelinger/1-6/Arrangementer/1-6-2021-09-06-Halloween-forslag.pdf)
                                            [1-6 2021 Sommerudflugt - invitation til beboerne](https://nfbo.dk/p/Boligdata/Filer/Afdelinger/1-6/Arrangementer/1-6-2021-08-08-Sommertur-til-Langeland.pdf)
                                            [1-6 2021-05-18 Petanque 2021](https://nfbo.dk/p/Boligdata/Filer/Afdelinger/1-6/Arrangementer/1-6-2021-05-18-Petanque-2021.pdf)
                                            [1-13 2026-07-04 Sommerfest](https://nfbo.dk/p/Boligdata/Filer/Afdelinger/1-6/Arrangementer/1-13-2026-07-04-Sommerfest-2026.pdf)

###

                                                Dagsorden og referat i afdelingsbestyrelsen mv

[1-6 2025-09-30 Referat af bestyrelsesmøde](https://nfbo.dk/p/Boligdata/Filer/Afdelinger/1-6/Dagsorden%20og%20referat%20i%20afdelingsbestyrelsen%20mv/2025-09-30-Referat-bestyrelsesm&#xF8;de.pdf)
                                            [1-6 2021-11-25 Referat bestyrelsesmøde](https://nfbo.dk/p/Boligdata/Filer/Afdelinger/1-6/Dagsorden%20og%20referat%20i%20afdelingsbestyrelsen%20mv/2021-11-25-Referat-bestyrelsesm&#xF8;de.pdf)
                                            [1-6 2021-10-28 Referat bestyrelsesmøde](https://nfbo.dk/p/Boligdata/Filer/Afdelinger/1-6/Dagsorden%20og%20referat%20i%20afdelingsbestyrelsen%20mv/2021-10-28-Referat-bestyrelsesm&#xF8;de.pdf)
                                            [1-6 2021-09-27 Referat bestyrelsesmøde](https://nfbo.dk/p/Boligdata/Filer/Afdelinger/1-6/Dagsorden%20og%20referat%20i%20afdelingsbestyrelsen%20mv/2021-09-27-Referat-bestyrelsesm&#xF8;de.pdf)
                                            [1-6 2021-08-30 Referat bestyrelsesmøde](https://nfbo.dk/p/Boligdata/Filer/Afdelinger/1-6/Dagsorden%20og%20referat%20i%20afdelingsbestyrelsen%20mv/2021-08-30-Referat-bestyrelsesm&#xF8;de.pdf)
                                            [1-6 2021-08-02 Referat møde for kontaktpersoner](https://nfbo.dk/p/Boligdata/Filer/Afdelinger/1-6/Dagsorden%20og%20referat%20i%20afdelingsbestyrelsen%20mv/2021-08-02-Referat-m&#xF8;de-for-kontaktpersoner.pdf)
                                            [1-6 2021-05-03 Referat bestyrelsesmøde](https://nfbo.dk/p/Boligdata/Filer/Afdelinger/1-6/Dagsorden%20og%20referat%20i%20afdelingsbestyrelsen%20mv/2021-05-03-Referat-bestyrelsesm&#xF8;de.pdf)
                                            [1-6 2026-04-14 Referat ekstraordinært afdelingsmøde](https://nfbo.dk/p/Boligdata/Filer/Afdelinger/1-6/Dagsorden%20og%20referat%20i%20afdelingsbestyrelsen%20mv/1-6-2026-04-14-Referat-ekstraordin&#xE6;rt-afdelingsm&#xF8;de.pdf)
                                            [1-6 2025-11-02 Referat af bestyrelsesmøde](https://nfbo.dk/p/Boligdata/Filer/Afdelinger/1-6/Dagsorden%20og%20referat%20i%20afdelingsbestyrelsen%20mv/1-6-2025-11-02-Referat-bestyrelsesm&#xF8;de.pdf)
                                            [1-6 2025-10-27 Referat af bestyrelsesmøde](https://nfbo.dk/p/Boligdata/Filer/Afdelinger/1-6/Dagsorden%20og%20referat%20i%20afdelingsbestyrelsen%20mv/1-6-2025-10-27-Referat-bestyrelsesm&#xF8;de.pdf)

###

                                                Energimærkning

[1-6 Energimærke - Parkvej 64-74](https://nfbo.dk/p/Boligdata/Filer/Afdelinger/1-6/Energim&#xE6;rkning/1-6-Energim&#xE6;rke---Parkvej-64-74.pdf)
                                            [1-6 Energimærke - Parkvej 52-62](https://nfbo.dk/p/Boligdata/Filer/Afdelinger/1-6/Energim&#xE6;rkning/1-6-Energim&#xE6;rke---Parkvej-52-62.pdf)
                                            [1-6 Energimærke - Møllebakken 4-12](https://nfbo.dk/p/Boligdata/Filer/Afdelinger/1-6/Energim&#xE6;rkning/1-6-Energim&#xE6;rke---M&#xF8;llebakken-4-12.pdf)
                                            [1-6 Energimærke - Møllebakken 34-42 og Fjordvej 50](https://nfbo.dk/p/Boligdata/Filer/Afdelinger/1-6/Energim&#xE6;rkning/1-6-Energim&#xE6;rke---M&#xF8;llebakken-34-42-og-Fjordvej-50.pdf)
                                            [1-6 Energimærke - Møllebakken 24-32](https://nfbo.dk/p/Boligdata/Filer/Afdelinger/1-6/Energim&#xE6;rkning/1-6-Energim&#xE6;rke---M&#xF8;llebakken-24-32.pdf)
                                            [1-6 Energimærke - Møllebakken 14-22](https://nfbo.dk/p/Boligdata/Filer/Afdelinger/1-6/Energim&#xE6;rkning/1-6-Energim&#xE6;rke---M&#xF8;llebakken-14-22.pdf)

###

                                                Informationer

[1-6 2024-12-09 Information om Selskabslokale](https://nfbo.dk/p/Boligdata/Filer/Afdelinger/1-6/Informationer/1-6-2024-12-09-Information-om-Selskabslokale.pdf)
                                            [1-6 2024-07-18 Ny indsamlingsordning af affald - Møllebakken 4-42 Parkvej 52-74](https://nfbo.dk/p/Boligdata/Filer/Afdelinger/1-6/Informationer/1-6-2024-07-18-Ny-indsamlingsordning-af-affald---M&#xF8;llebakken-4-42-Parkvej-52-74.pdf)
                                            [1-6 2024-07-18 Ny indsamlingsordning af affald - Fjordvej 21-35](https://nfbo.dk/p/Boligdata/Filer/Afdelinger/1-6/Informationer/1-6-2024-07-18-Ny-indsamlingsordning-af-affald---Fjordvej-21-35.pdf)
                                            [1-6 2023-10-13 Resultat af urafstemning om afkalkningsanlæg](https://nfbo.dk/p/Boligdata/Filer/Afdelinger/1-6/Informationer/1-6-2023-10-13-Resultat-af-urafstemning-om-afkalkningsanl&#xE6;g.pdf)
                                            [1-6 2021-05-01 Byggenyt - naboer](https://nfbo.dk/p/Boligdata/Filer/Afdelinger/1-6/Informationer/1-6-2021-05-01-Byggenyt---naboer.pdf)

###

                                                Regler i afdelingen

[1-6 2025-2026 Forretningsorden afdelingsbestyrelsen](https://nfbo.dk/p/Boligdata/Filer/Afdelinger/1-6/Regler%20i%20afdelingen/Forretningsorden-afdelingsbestyrelsen-afd.-6-2025---underskrevet.pdf)
                                            [1-6 2016 Vedligeholdelsesregler](https://nfbo.dk/p/Boligdata/Filer/Afdelinger/1-6/Regler%20i%20afdelingen/1-6-Vedligeholdelsesregler.pdf)
                                            [1-6 2015 Lokale regler](https://nfbo.dk/p/Boligdata/Filer/Afdelinger/1-6/Regler%20i%20afdelingen/1-6-Lokale-regler-2015.pdf)
                                            [1-6 2023 Husordensregler](https://nfbo.dk/p/Boligdata/Filer/Afdelinger/1-6/Regler%20i%20afdelingen/1-6-Husordensregler-2023-ver-2.pdf)
                                            [1-6 2024 Forretningsorden afdelingsmødet](https://nfbo.dk/p/Boligdata/Filer/Afdelinger/1-6/Regler%20i%20afdelingen/1-6-Forretningsorden-afdelingsm&#xF8;det-2024.pdf)

###

                                                Selskabslokale

[1-5 Selskabslokale Grønttorvet](https://nfbo.dk/p/Boligdata/Filer/Afdelinger/1-6/Selskabslokale/1-5-Selskabslokale-Gr&#xF8;nttorvet.pdf)
                                            [1-3 Selskabslokale Fjordvej 43](https://nfbo.dk/p/Boligdata/Filer/Afdelinger/1-6/Selskabslokale/1-3-Selskabslokale-Fjordvej-43.pdf)
                                            [1-17 Selskabslokale Frisegade 33](https://nfbo.dk/p/Boligdata/Filer/Afdelinger/1-6/Selskabslokale/1-17-Selskabslokale-Frisegade-33.pdf)
                                            [1-13 Selskabslokale Holger Brodthagensvej 163](https://nfbo.dk/p/Boligdata/Filer/Afdelinger/1-6/Selskabslokale/1-13-Selskabslokale-Holger-Brodthagensvej-163.pdf)

###

                                                Vedligeholdelse

[1-6 Gulvvarmeanlæg](https://nfbo.dk/p/Boligdata/Filer/Afdelinger/1-6/Vedligeholdelse/1-6-Gulvvarmeanl&#xE6;g.pdf)
                                            [1-6 Brugervejledning vedr. badeværelser](https://nfbo.dk/p/Boligdata/Filer/Afdelinger/1-6/Vedligeholdelse/1-6-Brugervejledning-vedr.-badev&#xE6;relser.pdf)

## Renovering

###

                                                Renovering

[1-6 2026-04-14 Præsentation af endeligt projekt](https://nfbo.dk/p/Boligdata/Filer/Afdelinger/1-6/Renovering/M&#xD8;L_Pr&#xE6;sentation-d.-14.01.2025---Rev-A.pdf)
                                            [1-6 2024-01-15 Dagsorden ekstraordinær afdelingsmøde](https://nfbo.dk/p/Boligdata/Filer/Afdelinger/1-6/Renovering/Dagsorden.pdf)
                                            [1-6 2026-04-14 Referat ekstraordinært afdelingsmøde](https://nfbo.dk/p/Boligdata/Filer/Afdelinger/1-6/Renovering/1-6-2026-04-14-Referat-ekstraordin&#xE6;rt-afdelingsm&#xF8;de.pdf)
                                            [1-6 2026-04-14 Indkaldelse til ekstraordinært afdelingsmøde](https://nfbo.dk/p/Boligdata/Filer/Afdelinger/1-6/Renovering/1-6-2026-04-14-Ekstraordin&#xE6;rt-afdelingsm&#xF8;de---indkaldelse.pdf)
                                            [1-6 2025-05-05 Varsling om droneflyvning](https://nfbo.dk/p/Boligdata/Filer/Afdelinger/1-6/Renovering/1-6-2025-05-05-Varsling-om-droneflyvning.pdf)
                                            [1-6 2024-02-07 Resultat af urafstemning 2024](https://nfbo.dk/p/Boligdata/Filer/Afdelinger/1-6/Renovering/1-6-2024-02-07-Resultat-af-urafstemning-2024.pdf)
                                            [1-6 2024-01-15 Præsentation af forslag om renovering](https://nfbo.dk/p/Boligdata/Filer/Afdelinger/1-6/Renovering/1-6-2024-01-15-Pr&#xE6;sentation-af-forslag-om-renovering.pdf)
                                            [1-6 2024-01-15 Referat af ekstraordinært afdelingsmøde](https://nfbo.dk/p/Boligdata/Filer/Afdelinger/1-6/Renovering/01-06-referat-ekstraordin&#xE6;rt-afdelingsm&#xF8;de-2024---rettet.pdf)

## Afdelingsmøder

###

                                                2026

[1-6 2026-04-14 Ekstraordinært afdelingsmøde - indkaldelse](https://nfbo.dk/p/Boligdata/Filer/Afdelinger/1-6/Afdelingsm&#xF8;der/2026/1-6-2026-04-14-Ekstraordin&#xE6;rt-afdelingsm&#xF8;de---indkaldelse.pdf)
                                            [1-6 2026-02-26 Ekstraordinært afdelingsmøde - indkaldelse](https://nfbo.dk/p/Boligdata/Filer/Afdelinger/1-6/Afdelingsm&#xF8;der/2026/1-6-2026-02-26-Ekstraordin&#xE6;rt-afdelingsm&#xF8;de-indkaldelse.pdf)
                                            [1-6 2026-02-26 Ekstraordinært afdelingsmøde - referat](https://nfbo.dk/p/Boligdata/Filer/Afdelinger/1-6/Afdelingsm&#xF8;der/2026/01-06-2026-02-26-Ekstraordin&#xE6;rt-afdelingsm&#xF8;de---referat.pdf)

###

                                                2025

[1-6 2025 Regnskab for rådighedsbeløb 2024](https://nfbo.dk/p/Boligdata/Filer/Afdelinger/1-6/Afdelingsm&#xF8;der/2025/Regnskab-for-r&#xE5;dighedsbel&#xF8;b-2024-afdeling-6.pdf)
                                            [1-6 2025 Langtidsplan](https://nfbo.dk/p/Boligdata/Filer/Afdelinger/1-6/Afdelingsm&#xF8;der/2025/Langtidsplan-2026-og-frem-afdeling-6.pdf)
                                            [1-6 2025 Forslag indskrevet](https://nfbo.dk/p/Boligdata/Filer/Afdelinger/1-6/Afdelingsm&#xF8;der/2025/Forslag-indskrevet-afdeling-6-2025.pdf)
                                            [1-6 2025 Dagsorden ordinært afdelingsmøde](https://nfbo.dk/p/Boligdata/Filer/Afdelinger/1-6/Afdelingsm&#xF8;der/2025/Dagsorden-ordin&#xE6;rt-m&#xF8;de-2025-afdeling-6-.pdf)
                                            [1-6 2025 Budget 2026](https://nfbo.dk/p/Boligdata/Filer/Afdelinger/1-6/Afdelingsm&#xF8;der/2025/Budget-2026-afdeling-6.pdf)
                                            [1-6 2025 Referat ordinært afdelingsmøde](https://nfbo.dk/p/Boligdata/Filer/Afdelinger/1-6/Afdelingsm&#xF8;der/2025/01-06-referat-ordin&#xE6;rt-afdelingsm&#xF8;de-2025.pdf)

###

                                                2024

[1-6 2024-09-09 Regnskab for rådighedsbeløb 2023](https://nfbo.dk/p/Boligdata/Filer/Afdelinger/1-6/Afdelingsm&#xF8;der/2024/1-6-2024-Regnskab-for-r&#xE5;dighedsbel&#xF8;b-2023.pdf)
                                            [1-6 2024-09-09 Referat ordinært afdelingsmøde 2024](https://nfbo.dk/p/Boligdata/Filer/Afdelinger/1-6/Afdelingsm&#xF8;der/2024/1-6-2024-Referat-ordin&#xE6;rt-afdelingsm&#xF8;de-2024.pdf)
                                            [1-6 2024-01-15 Referat ekstraordinært afdelingsmøde](https://nfbo.dk/p/Boligdata/Filer/Afdelinger/1-6/Afdelingsm&#xF8;der/2024/1-6-2024-Referat-ekstraordin&#xE6;rt-afdelingsm&#xF8;de.pdf)
                                            [1-6 2024-01-15 Præsentation ekstraordinært afdelingsmøde](https://nfbo.dk/p/Boligdata/Filer/Afdelinger/1-6/Afdelingsm&#xF8;der/2024/1-6-2024-Pr&#xE6;sentation-ekstraordin&#xE6;rt-afdelingsm&#xF8;de.pdf)
                                            [1-6 2024-09-09 Langtidsplan](https://nfbo.dk/p/Boligdata/Filer/Afdelinger/1-6/Afdelingsm&#xF8;der/2024/1-6-2024-Langtidsplan-1-1-2025.pdf)
                                            [1-6 2024-09-09 Forslag indskrevet](https://nfbo.dk/p/Boligdata/Filer/Afdelinger/1-6/Afdelingsm&#xF8;der/2024/1-6-2024-Forslag-indskrevet.pdf)
                                            [1-6 2024-09-09 Dagsorden ordinært afdelingsmøde](https://nfbo.dk/p/Boligdata/Filer/Afdelinger/1-6/Afdelingsm&#xF8;der/2024/1-6-2024-Dagsorden-ordin&#xE6;rt-afdelingsm&#xF8;de.pdf)
                                            [1-6 2024-01-15 Dagsorden ekstraordinært afdelingsmøde](https://nfbo.dk/p/Boligdata/Filer/Afdelinger/1-6/Afdelingsm&#xF8;der/2024/1-6-2024-Dagsorden-ekstraordin&#xE6;rt-afdelingsm&#xF8;de.pdf)
                                            [1-6 2024-09-09 Budget 2025](https://nfbo.dk/p/Boligdata/Filer/Afdelinger/1-6/Afdelingsm&#xF8;der/2024/1-6-2024-Budget-2025.pdf)

###

                                                2023

[1-6 2023 Regnskab for rådighedsbeløb 2022](https://nfbo.dk/p/Boligdata/Filer/Afdelinger/1-6/Afdelingsm&#xF8;der/2023/1-6-2023-Regnskab-for-r&#xE5;dighedsbel&#xF8;b-2022.pdf)
                                            [1-6 2023 Referat ordinært afdelingsmøde](https://nfbo.dk/p/Boligdata/Filer/Afdelinger/1-6/Afdelingsm&#xF8;der/2023/1-6-2023-Referat-ordin&#xE6;rt-afdelingsm&#xF8;de.pdf)
                                            [1-6 2023 Forslag indskrevet](https://nfbo.dk/p/Boligdata/Filer/Afdelinger/1-6/Afdelingsm&#xF8;der/2023/1-6-2023-Forslag-indskrevet.pdf)
                                            [1-6 2023 Dagsorden ordinært afdelingsmøde](https://nfbo.dk/p/Boligdata/Filer/Afdelinger/1-6/Afdelingsm&#xF8;der/2023/1-6-2023-Dagsorden-ordin&#xE6;rt-afdelingsm&#xF8;de.pdf)
                                            [1-6 2023 Budget 2024](https://nfbo.dk/p/Boligdata/Filer/Afdelinger/1-6/Afdelingsm&#xF8;der/2023/1-6-2023-Budget-2024.pdf)

###

                                                2022

[1-6 2022 Regnskab for rådighedsbeløb 2021](https://nfbo.dk/p/Boligdata/Filer/Afdelinger/1-6/Afdelingsm&#xF8;der/2022/1-6-2022-Regnskab-for-r&#xE5;dighedsbel&#xF8;b-2021.pdf)
                                            [1-6 2022 Referat ordinært afdelingsmøde](https://nfbo.dk/p/Boligdata/Filer/Afdelinger/1-6/Afdelingsm&#xF8;der/2022/1-6-2022-Referat-ordin&#xE6;rt-afdelingsm&#xF8;de.pdf)
                                            [1-6 2022 Forslag indskrevet](https://nfbo.dk/p/Boligdata/Filer/Afdelinger/1-6/Afdelingsm&#xF8;der/2022/1-6-2022-Forslag-indskrevet.pdf)
                                            [1-6 2022 Dagsorden ordinært afdelingsmøde](https://nfbo.dk/p/Boligdata/Filer/Afdelinger/1-6/Afdelingsm&#xF8;der/2022/1-6-2022-Dagsorden-ordin&#xE6;rt-afdelingsm&#xF8;de.pdf)
                                            [1-6 2022 Budget 2023](https://nfbo.dk/p/Boligdata/Filer/Afdelinger/1-6/Afdelingsm&#xF8;der/2022/1-6-2022-Budget-2023.pdf)

###

                                                2021

[1-6 2021 Regnskab for rådighedsbeløb 2020](https://nfbo.dk/p/Boligdata/Filer/Afdelinger/1-6/Afdelingsm&#xF8;der/2021/1-6-2021-Regnskab-for-r&#xE5;dighedsbel&#xF8;b-2020.pdf)
                                            [1-6 2021 Referat ordinært afdelingsmøde](https://nfbo.dk/p/Boligdata/Filer/Afdelinger/1-6/Afdelingsm&#xF8;der/2021/1-6-2021-Referat-ordin&#xE6;rt-afdelingsm&#xF8;de.pdf)
                                            [1-6 2021 Forslag indskrevet](https://nfbo.dk/p/Boligdata/Filer/Afdelinger/1-6/Afdelingsm&#xF8;der/2021/1-6-2021-Forslag-indskrevet.pdf)
                                            [1-6 2021 Dagsorden ordinært afdelingsmøde](https://nfbo.dk/p/Boligdata/Filer/Afdelinger/1-6/Afdelingsm&#xF8;der/2021/1-6-2021-Dagsorden-ordin&#xE6;rt-afdelingsm&#xF8;de.pdf)
                                            [1-6 2021 Budget 2022](https://nfbo.dk/p/Boligdata/Filer/Afdelinger/1-6/Afdelingsm&#xF8;der/2021/1-6-2021-Budget-2022.pdf)

## Afdelingsbestyrelsesmedlemmer

Navn

Titel

Email

Telefon

Jenny Nielsen

Formand

jennylilywhite@gmail.com

Mette Frederiksen

Medlem

Morten Hauspild Petersen

Medlem

mhauspild@gmail.com

61265678

Henrik Bengtsson

Suppleant

26781907

Kim Sørensen

Suppleant

malerkim1979@gmail.com

50570388
